Porozmawiaj z nami 7 dni w tygodniu 606 705 388, 692 715 791 lub napisz: biuro@domtodom.pl
| Powierzchnia całkowita: | 315,72 m2 |
| Powierzchnia zabudowy: | 221,21 m2 |
| Kubatura: | 1422,69 m3 |
| Kubatura ogrzewana: | 900,88 m |
| Wysokość do okapu: | 5,43 m |
| Wysokość budynku: | 9,03 m |
Ściany zewnętrzne: dwuwarstwowe, silikat i bloczek gazobetonowy + styropian
Strop: nad parterem płyta żelbetowa monolityczna, nad poddaszem sufit podwieszony do konstrukcji dachu
Schody: żelbetowe, monolityczne
Ścianka kolankowa: 182cm
Dach: dwuspadowy, nachylenie 35º, pokrycie z blachy płaskiej, konstrukcja drewniana
Przedstawiamy projekt komercyjnego budynku usługowego z częścią mieszkalną. Budynek charakteryzuje się prostą i ekonomiczną bryłą we współczesnym, atrakcyjnym wydaniu.
Na parterze zaprojektowano przestronne pomieszczenie usługowe o powierzchni 123m2, do adaptacji pod indywidualne przeznaczenie. Do pomieszczenia przylega część socjalno-sanitarna dla personelu oraz sanitarna dla Klientów, również niepełnosprawnych. Przedstawiany układ spełnia wymogi higieniczno-sanitarne stawiane obecnie budynkom usługowym. Uzupełnieniem funkcji usługowej jest pomieszczenie techniczne mogące pełnić funkcję magazynową. Przewidziano również pomieszczenie na odpady bytowe, dzięki któremu budynek może być zlokalizowany na ograniczonych gabarytowo działkach.
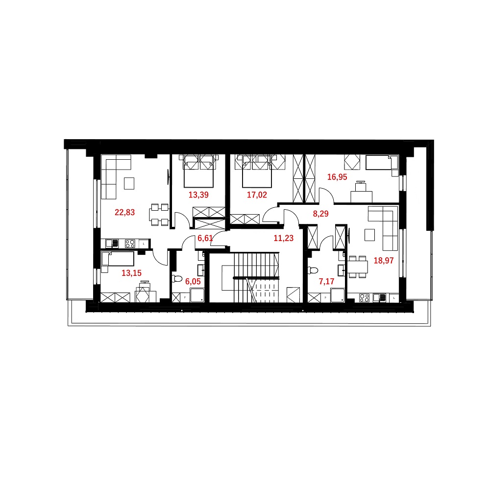
Na poddaszu, do którego prowadzi niezależna klatka schodowa, usytuowano dwa, 3-pokojowe mieszkania o powierzchniach 68,40m2 i 62,03m2. Zamieszkać mogą w nich wygodnie 3-4 osobowe rodziny. Mieszkania mają dostępy do własnych tarasów.
Ogrzewanie budynku przewidziano w 2 wariantach. Wariant 1 to centralna kotłownia na pelet, usytuowana na parterze, która ogrzewa cały budynek. Wariant 2 to kotłownia gazowa lub na paliwo stałe pelet, która ogrzewa parter, natomiast mieszkania ogrzewane są odrębnymi kociołkami gazowymi, umieszczonymi w łazienkach.
Zaletą prezentowanego obiektu jest elastyczność w dostosowaniu go do indywidualnych potrzeb. Stanowić również może alternatywną lokatę kapitału dającą zysk z wynajmu powierzchni komercyjnej i prywatnej.

Dbamy o najlepszą ofertę dla naszych Inwestorów.

W kilka chwil wybierzesz z nami swój wymarzony dom.

Pomożemy Ci we wszystkich formalnościach, dostosujemy projekt do Twoich indywidualnych potrzeb.

Projekt wymarzonego domu może być u Ciebie nawet następnego dnia po zamówieniu.