Porozmawiaj z nami 7 dni w tygodniu 606 705 388, 692 715 791 lub napisz: biuro@domtodom.pl
| Powierzchnia użytkowa: | 131,70 m2 |
| Powierzchnia całkowita: | 164,70 m2 |
| Powierzchnia zabudowy: | 108,00 m2 |
| Kubatura: | 439,24 m3 |
| Wysokość budynku: | 7,77 m |
| Wysokość do okapu: | b.d. |
Ściany zewnętrzne: gazobeton, ceramika, silikaty
Strop: betonowy gęstożebrowy
Schody: dwubiegowe, wachlarzowe
Ścianka kolankowa: 140 cm
Dach: dwuspadowy, nachylenie 35°, pokrycie z dachówki, blachodachówki
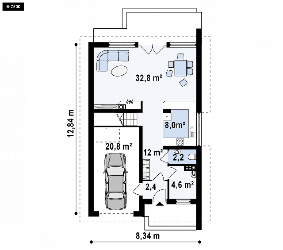
Z154 dom o podłużnym rzucie z garażem w bryle i dachem dwuspadowy. Prosta bryła czynią go tanią i ekonomiczną inwestycją. Projekt wyróżnia się ciekawą, ceglaną elewacją, idealnie skomponowaną z jasnym odcieniem ścian. Wnętrze domu jest przestronne i funkcjonalne. Na szczególną uwagę zasługuje duży, jasny salon ze skrajnie usytuowanym kominkiem. Doskonale łączy w sobie strefę wypoczynku z jadalnią. Otwarta kompozycja kuchni uzupełnia i optycznie powiększa całe pomieszczenie. W projekcie znajduje się również niewielka toaleta, podręczne pomieszczenie gospodarcze oraz jednostanowiskowy garaż . Piętro tworzą trzy wygodne sypialnie z komfortową łazienką. Sypialnia rodziców posiada osobną garderobę oraz wyjście na balkon z widokiem na ogród. Z154 ze względu na swą szerokość nadaje się również na wąska działkę. Z154 to dom dla osób ceniących przestronne, jasne wnętrza i funkcjonalne rozwiązania

Dbamy o najlepszą ofertę dla naszych Inwestorów.

W kilka chwil wybierzesz z nami swój wymarzony dom.

Pomożemy Ci we wszystkich formalnościach, dostosujemy projekt do Twoich indywidualnych potrzeb.

Projekt wymarzonego domu może być u Ciebie nawet następnego dnia po zamówieniu.