Porozmawiaj z nami 7 dni w tygodniu 606 705 388, 692 715 791 lub napisz: biuro@domtodom.pl
| Powierzchnia użytkowa: | 142,50 m2 |
| Powierzchnia całkowita: | 182,00 m2 |
| Powierzchnia zabudowy: | 171,10 m2 |
| Kubatura: | 416,15 m3 |
| Wysokość budynku: | 7,39 m |
| Wysokość do okapu: | b.d. |
Ściany zewnętrzne: gazobeton, ceramika, silikaty
Strop: betonowy gęstożebrowy
Schody: dwubiegowe
Ścianka kolankowa: 70 cm
Dach: wielospadowy, nachylenie 45°/32°, pokrycie z dachówki, blachodachówki
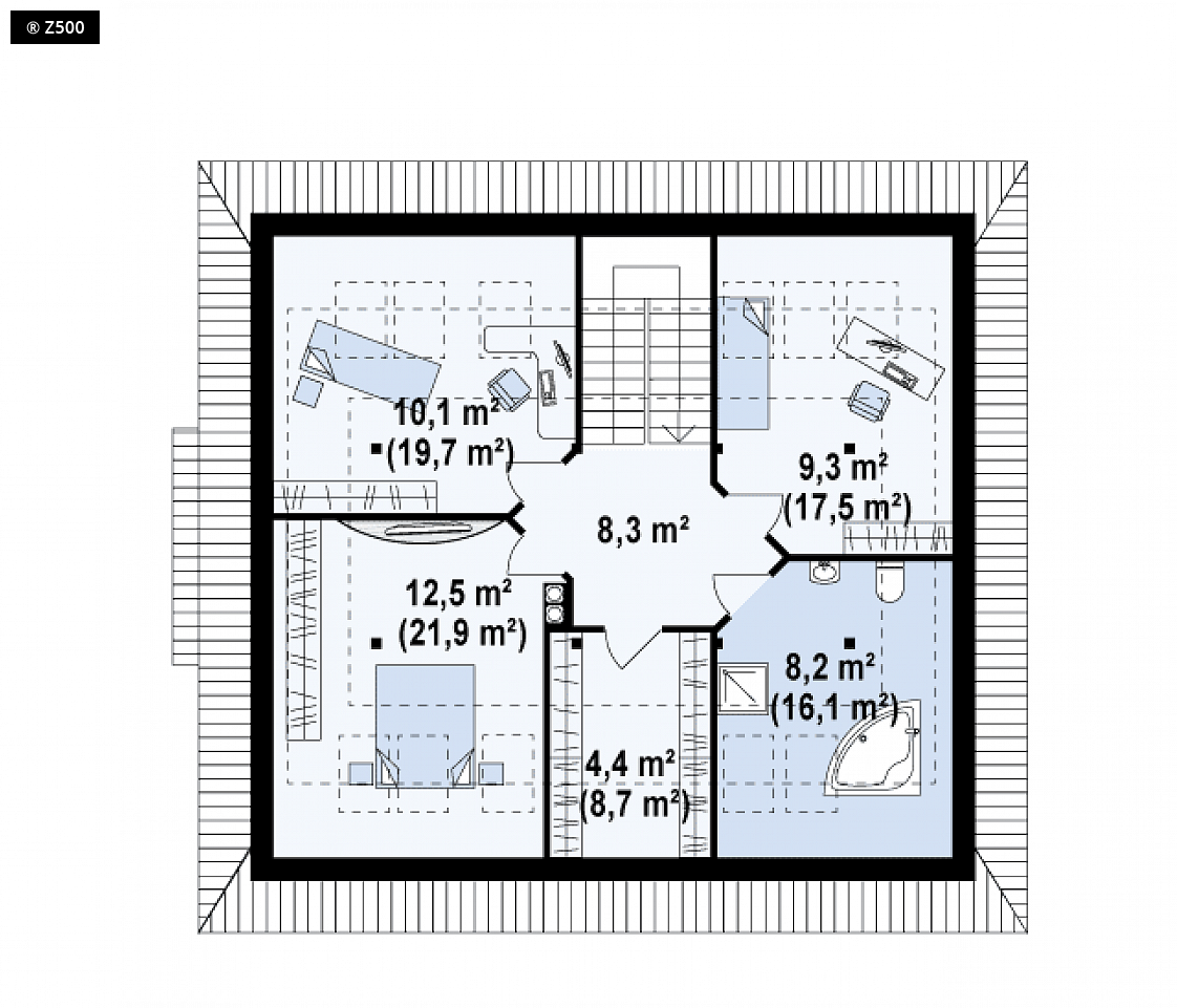
Z104 to projekt domu z użytkowym poddaszem. Cechuje go prosta, elegancka forma z odrobiną nowoczesnych rozwiązań. Efektowne wkomponowanie drewnianych elementów nadaje mu ciekawy i niepowtarzalny wygląd. Front domu posiada zadaszone wejście, które dalej prowadzi nas do sieni i pomieszczenia gospodarczego. Na parterze usytuowany jest przestronny gabinet oraz spora sypialnia. Kwadratowy kształt łazienki pozwala na wygodne jej urządzenie. Dużą zaletą tego projektu jest przestronna, funkcjonalna kuchnia, która spełni wymagania każdej pani domu. Salon połączony jest z jadalnią, w której cała rodzina może wspólnie jadać posiłki. Na poddaszu znajdują się trzy widne pokoje, łazienka z miejscem na dużą wannę a nawet garderoba. Projekt domu Z104 łączy w sobie piękno architektury oraz funkcjonalność. Z każdej strony dom prezentuje się atrakcyjnie a jego ciepło i urok sprawi że każdy domownik znajdzie w nim miejsce dla siebie.

Dbamy o najlepszą ofertę dla naszych Inwestorów.

W kilka chwil wybierzesz z nami swój wymarzony dom.

Pomożemy Ci we wszystkich formalnościach, dostosujemy projekt do Twoich indywidualnych potrzeb.

Projekt wymarzonego domu może być u Ciebie nawet następnego dnia po zamówieniu.