Porozmawiaj z nami 7 dni w tygodniu 606 705 388, 692 715 791 lub napisz: biuro@domtodom.pl
| Powierzchnia użytkowa: | 147,00 m2 |
| Powierzchnia całkowita: | 170,40 m2 |
| Powierzchnia zabudowy: | 108,30 m2 |
| Kubatura: | 416,00 m3 |
| Wysokość budynku: | 7,51 m |
| Wysokość do okapu: | b.d. |
Ściany zewnętrzne: gazobeton, ceramika, silikaty
Strop: betonowy gęstożebrowy
Schody: dwubiegowe, wachlarzowe
Ścianka kolankowa: 90 cm
Dach: dwuspadowy, nachylenie 35°, pokrycie z dachówki, blachodachówki
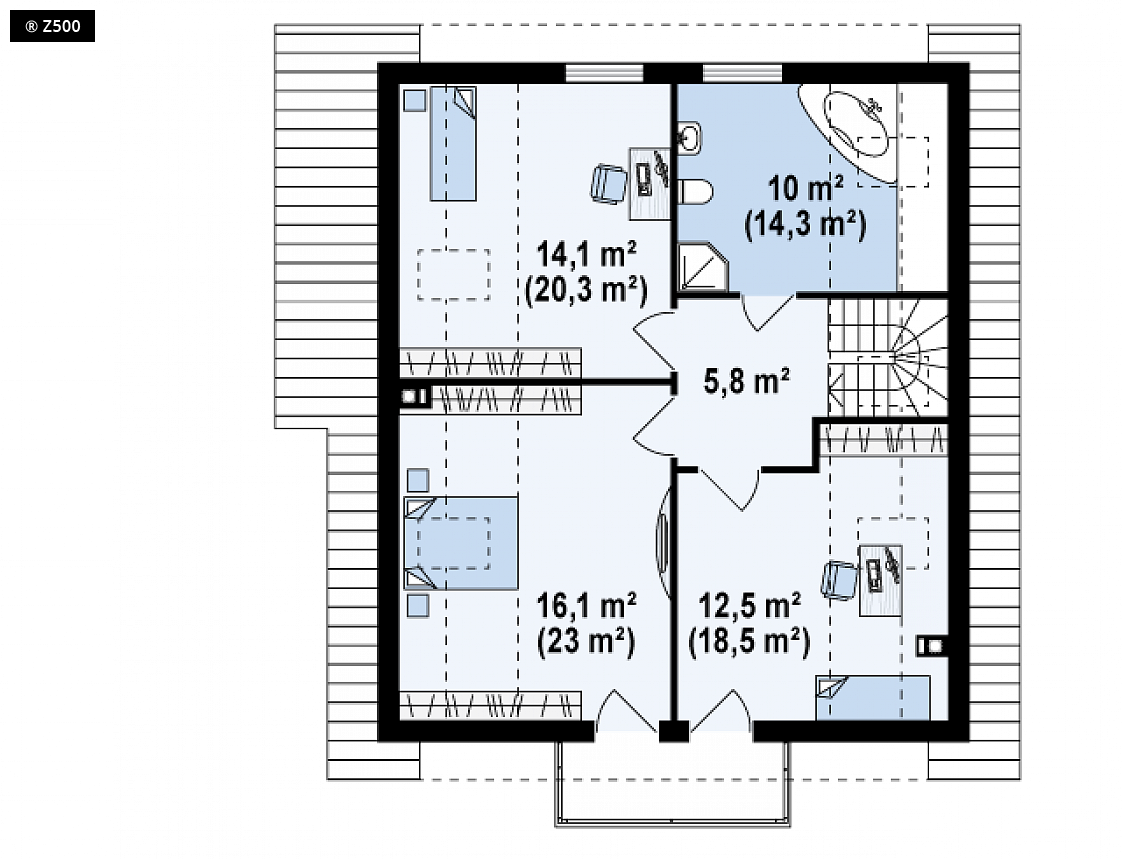
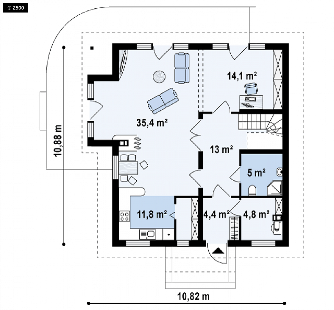
Projekt Z63 to dom o prostej bryle z dwuspadowym dachem. Elewacje zewnętrzne i wykończenie budynku klinkierową okładziną sprawiają, że dom wygląda schludnie i estetycznie. Na parterze znajduje się przestronny salon połączony z jadalnią i kuchnią. Dodatkowo przewidziano powierzchnię, którą można przeznaczyć na gabinet, pokój gościnny lub wykorzystać na powiększenie samego salonu. Przy strefie wejściowej zlokalizowano łazienkę, sień z miejscem na szafę i bezpośrednim przejściem do pomieszczenia gospodarczego. Poddasze przeznaczone jest głównie jako „część nocna”, gdzie każdy z domowników ma do dyspozycji jeden z trzech wygodnych i ustawnych pokoi oraz dużą, wspólną łazienkę. Pomieszczenia na poddaszu przewidują tradycyjne okna w ścianach szczytowych oraz miejsca na szafy i schowki. Dom Z63 dobrze wkomponuje się zarówno w zabudowę miejską jak i podmiejską.

Dbamy o najlepszą ofertę dla naszych Inwestorów.

W kilka chwil wybierzesz z nami swój wymarzony dom.

Pomożemy Ci we wszystkich formalnościach, dostosujemy projekt do Twoich indywidualnych potrzeb.

Projekt wymarzonego domu może być u Ciebie nawet następnego dnia po zamówieniu.