Porozmawiaj z nami 7 dni w tygodniu 606 705 388, 692 715 791 lub napisz: biuro@domtodom.pl
| Powierzchnia użytkowa: | 286,80 m2 |
| Powierzchnia całkowita: | 357,10 m2 |
| Powierzchnia zabudowy: | 234,80 m2 |
| Kubatura: | 935,90 m3 |
| Wysokość budynku: | 8,99 m |
| Wysokość do okapu: | b.d. |
Ściany zewnętrzne: gazobeton, ceramika, silikaty
Strop: betonowy gęstożebrowy
Schody: zabiegowe
Ścianka kolankowa: b.d.
Dach: wielospadowy, nachylenie 40°/35°, pokrycie z dachówki, blachodachówki
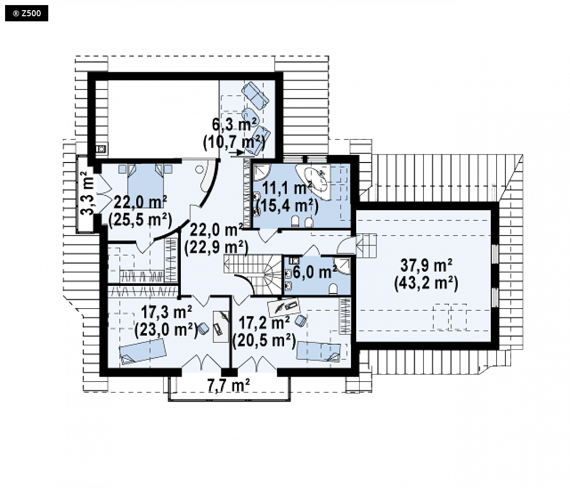
Projekt Z59 to rozłożysty dom przekryty dachem wielospadowym z poddaszem użytkowym i garażem 2-stanowiskowym. Elewacja wykończona kamieniem oraz drewnem wtapia się w naturalny krajobraz. Od strony ogrodu zaprojektowano liczne podcienie oraz zadaszenia osłaniające tarasy. Wejście prowadzi do sieni, gdzie po prawej stronie, znajduje się obszerna garderoba.Strefa dzienna, to jasny salon z jadalnią. Kuchnia, wraz ze spiżarnią, usytuowana została w aneksie z widokiem na ogród. Centralny hol z klatką schodową stanowi łącznik między pomieszczeniami. Gabinet oraz pokój gościnny można połączyć suwanymi drzwiami. Pomieszczenie gospodarcze dzięki przemyślanej komunikacji, łączy się z garażem i spiżarnią. Na piętrze zaplanowano dwa pokoje, główną sypialnię, z garderobą lub łazienką oraz pokój kąpielowy i niezależną łazienkę z natryskiem. Z59 to projekt dla ludzi szukających domu o ciekawej formie i funkcjonalnych rozwiązaniach.

Dbamy o najlepszą ofertę dla naszych Inwestorów.

W kilka chwil wybierzesz z nami swój wymarzony dom.

Pomożemy Ci we wszystkich formalnościach, dostosujemy projekt do Twoich indywidualnych potrzeb.

Projekt wymarzonego domu może być u Ciebie nawet następnego dnia po zamówieniu.