Porozmawiaj z nami 7 dni w tygodniu 606 705 388, 692 715 791 lub napisz: biuro@domtodom.pl
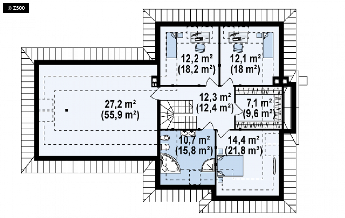
| Powierzchnia użytkowa: | 189,30 m2 |
| Powierzchnia całkowita: | 294,30 m2 |
| Powierzchnia zabudowy: | 173,90 m2 |
| Kubatura: | 693,03 m3 |
| Wysokość budynku: | 9,19 m |
| Wysokość do okapu: | b.d. |
Ściany zewnętrzne: gazobeton, ceramika, silikaty
Strop: betonowy gęstożebrowy
Schody: dwubiegowe, wachlarzowe
Ścianka kolankowa: 98 cm
Dach: wielospadowy, nachylenie 45°, pokrycie z dachówki, blachodachówki
Wariant z garażem dwustanowiskowym po prawej stronie i pomieszczeniem rekreacyjnym na poddaszu.

Dbamy o najlepszą ofertę dla naszych Inwestorów.

W kilka chwil wybierzesz z nami swój wymarzony dom.

Pomożemy Ci we wszystkich formalnościach, dostosujemy projekt do Twoich indywidualnych potrzeb.

Projekt wymarzonego domu może być u Ciebie nawet następnego dnia po zamówieniu.