Porozmawiaj z nami 7 dni w tygodniu 606 705 388, 692 715 791 lub napisz: biuro@domtodom.pl
| Powierzchnia użytkowa: | 153,60 m2 |
| Powierzchnia całkowita: | 194,80 m2 |
| Powierzchnia zabudowy: | 133,80 m2 |
| Kubatura: | 530,30 m3 |
| Wysokość budynku: | 8,47 m |
| Wysokość do okapu: | b.d. |
Ściany zewnętrzne: gazobeton, ceramika, silikaty
Strop: betonowy gęstożebrowy
Schody: dwubiegowe
Ścianka kolankowa: 100 cm
Dach: dwuspadowy, nachylenie 40°, pokrycie z dachówki, blachodachówki
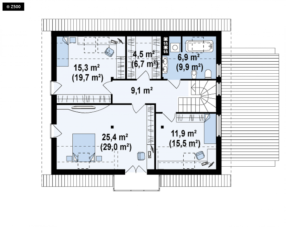
Z132 to projekt z poddaszem użytkowym oraz garażem jednostanowiskowym. Prostą bryłę przekrytą dwuspadowym dachem urozmaica lukarna nad wejściem, wcięcie od strony ogrodu oraz dostawiony z boku garaż jednostanowiskowy. Elewacje otulają okładziny z naturalnego drewna oraz matowego szkła. Część dzienną zaplanowano na parterze w lewym skrzydle z wyjściem na zadaszony taras. Główną zaleta domu jest duża, narożnie usytuowana kuchnia, częściowo otwarta na przestronny salon. Posiada okna skierowane zarówno na wjazd jak i na ogród oraz pojemną spiżarnię. Na parterze znajduje się także dodatkowy pokój, wc oraz obszerne pomieszczenie gospodarcze z przejściem do garażu. Strefa nocna na piętrze to trzy wygodne pokoje, praktyczna garderoba oraz łazienka z pralką. Główna, największa sypialnia gospodarzy posiada wyjście na balkon. Usytuowany tuż nad wejściem do budynku pełni również funkcję zadaszenia.

Dbamy o najlepszą ofertę dla naszych Inwestorów.

W kilka chwil wybierzesz z nami swój wymarzony dom.

Pomożemy Ci we wszystkich formalnościach, dostosujemy projekt do Twoich indywidualnych potrzeb.

Projekt wymarzonego domu może być u Ciebie nawet następnego dnia po zamówieniu.