Porozmawiaj z nami 7 dni w tygodniu 606 705 388, 692 715 791 lub napisz: biuro@domtodom.pl
| Powierzchnia użytkowa: | 142,10 m2 |
| Powierzchnia całkowita: | 190,20 m2 |
| Powierzchnia zabudowy: | 119,60 m2 |
| Kubatura: | 548,30 m3 |
| Wysokość budynku: | 7,92 m |
| Wysokość do okapu: | b.d. |
Ściany zewnętrzne: gazobeton, ceramika, silikaty
Strop: betonowy gęstożebrowy
Schody: dwubiegowe
Ścianka kolankowa: 113 cm
Dach: dwuspadowy, nachylenie 36°, pokrycie z dachówki, blachodachówki, blachy
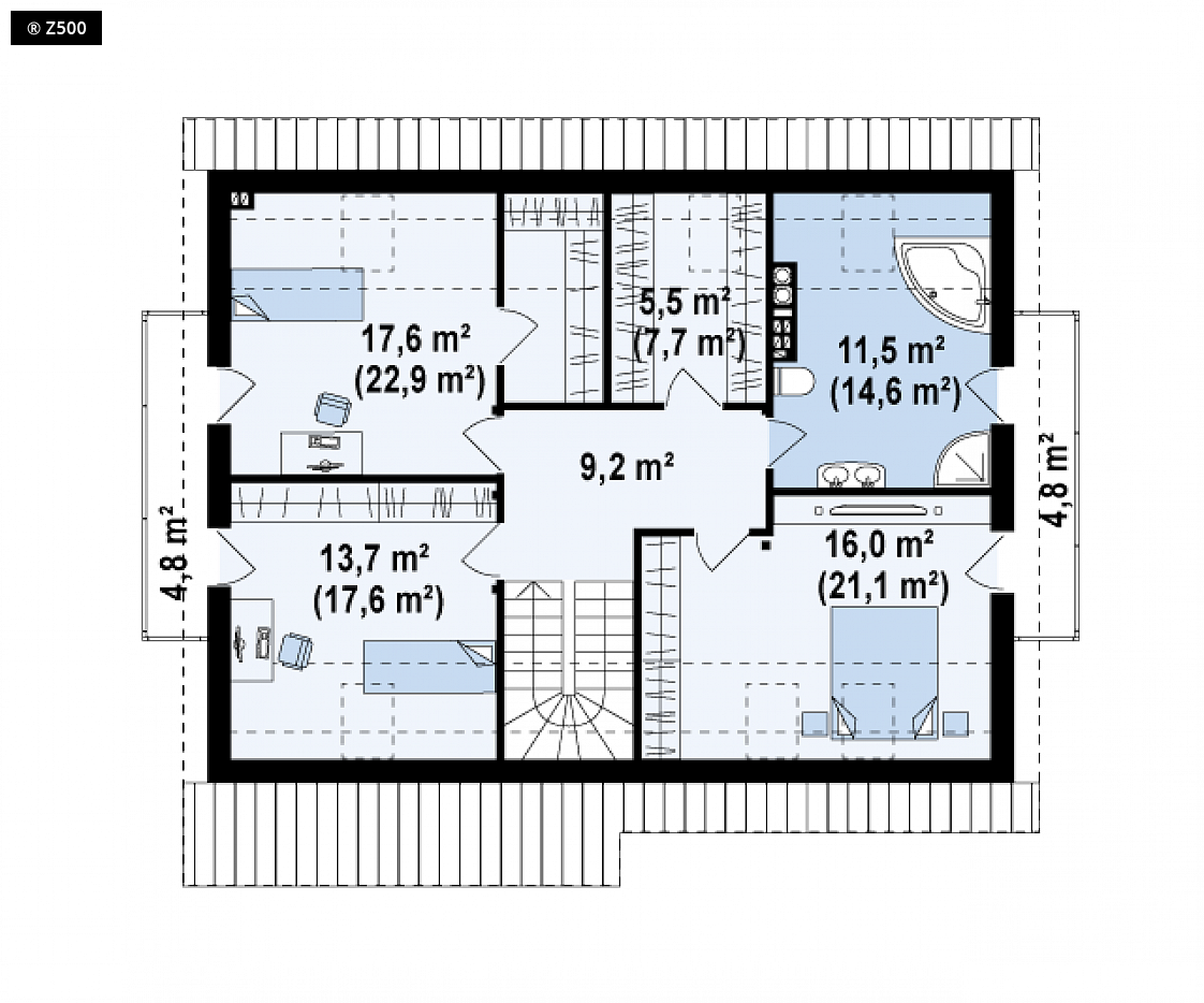
Z133 to prosty i funkcjonalny projekt domu piętrowego z garażem. Zwarta bryła oraz dwuspadowy dach warunkują niewielkie koszty budowy. Zastosowane z umiarem na elewacjach okładziny z naturalnego drewna nadają mu subtelnego charakteru i wdzięku. Wnętrze domu jest jasne i przestronne. Kuchnia w kompozycji otwartej z salonem tworzy komfortową strefę dzienną z widokiem na ogród oraz wyjściem na taras. Praktyczny pokój na parterze może pełnić funkcję gabinetu, dodatkowej sypialni lub pokoju gościnnego. Spora łazienka z oknem dostępna jest z sieni, która prowadzi do garażu. Takie usytuowanie zapewni komfort jej użytkowania przez domowników. Za jednostanowiskowym garażem znajduje się duże pomieszczenie gospodarcze. Na poddaszu zaprojektowano trzy wygodne sypialnie, komfortową łazienkę oraz ogólnodostępną garderobę. Jeden pokój został wyposażony we własną garderobę. Wszystkie sypialnie na piętrze mają dostęp do balkonów.

Dbamy o najlepszą ofertę dla naszych Inwestorów.

W kilka chwil wybierzesz z nami swój wymarzony dom.

Pomożemy Ci we wszystkich formalnościach, dostosujemy projekt do Twoich indywidualnych potrzeb.

Projekt wymarzonego domu może być u Ciebie nawet następnego dnia po zamówieniu.