Porozmawiaj z nami 7 dni w tygodniu 606 705 388, 692 715 791 lub napisz: biuro@domtodom.pl
| Powierzchnia użytkowa: | 180,10 m2 |
| Powierzchnia całkowita: | 180,10 m2 |
| Powierzchnia zabudowy: | 228,00 m2 |
| Kubatura: | b.d. |
| Wysokość budynku: | 5,35 m |
| Wysokość do okapu: | b.d. |
Ściany zewnętrzne: b.d.
Strop: b.d.
Schody: brak
Ścianka kolankowa: brak
Dach: płaski, nachylenie 3°
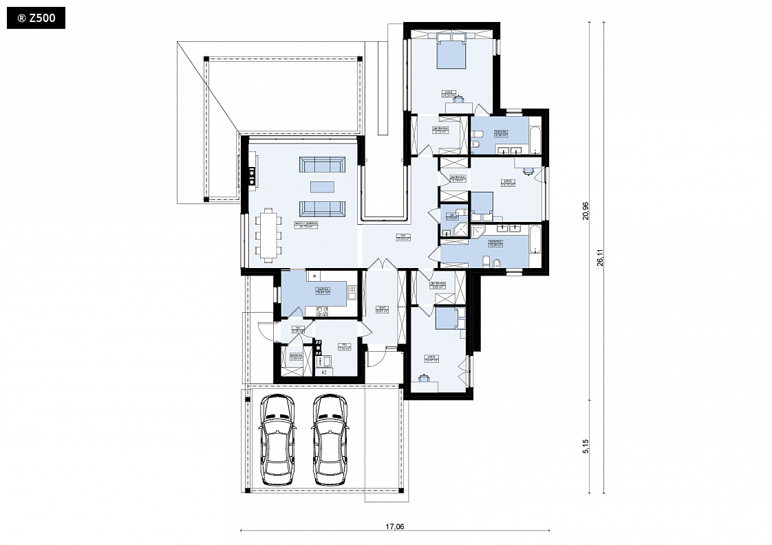
Dom parterowy, nowoczesny, z dwustanowiskową wiatą i płaskim dachem. Połączenie bieli i szarości , duże przeszklenia oraz rolety ozdobne stanowią eleganckie wykończenie bryły. Duża wiata garażowa spokojnie pomieści 2 samochody. Zadaszone wejście prowadzi do sieni, która jest ogniwem łączącym między pomieszczeniem gospodarczym i resztą domu. Lewa część domu to strefa dzienna. Należą do niej przestronny salon z jadalnią oraz kuchnia i podręczna spiżarka. Ciepły kominek rozplanowano blisko ściany przesuwnej, dzięki której powiększymy część dzienną o powierzchnię tarasu. Stanowi ona obfite źródło światła nawet w pochmurne dni. Prawa część domu to strefa nocna, na którą składają się 3 sypialnie. Wejście do każdej z nich prowadzi poprzez osobistą garderobę. Jest to spory atut szczególnie dla osób zapominalskich, które w porannym pośpiechu nie wezmą czegoś ciepłego do ubrania – nie ma konieczności wchodzenia do pokoju. Natomiast po pracy zachęcamy do chwili odprężenia na tarasie. Każdy z pokoi ma swoje wyjście, dzięki czemu popołudniowe zmęczenie pozostawimy za drzwiami tarasowymi. W środkowej części domu panoramiczne okna pozwalają podziwiać płynącą wodę, która zaczyna swoją drogę w okolicach głównego holu a kończy przy jadalni. Projekt Zx183 to propozycja nowoczesnego domu dla osób wymagających i rodzinnych jednocześnie.

Dbamy o najlepszą ofertę dla naszych Inwestorów.

W kilka chwil wybierzesz z nami swój wymarzony dom.

Pomożemy Ci we wszystkich formalnościach, dostosujemy projekt do Twoich indywidualnych potrzeb.

Projekt wymarzonego domu może być u Ciebie nawet następnego dnia po zamówieniu.