Porozmawiaj z nami 7 dni w tygodniu 606 705 388, 692 715 791 lub napisz: biuro@domtodom.pl
| Powierzchnia użytkowa: | 177,70 m2 |
| Powierzchnia całkowita: | 201,60 m2 |
| Powierzchnia zabudowy: | 142,40 m2 |
| Kubatura: | 491,26 m3 |
| Wysokość budynku: | 8,44 m |
| Wysokość do okapu: | b.d. |
Ściany zewnętrzne: gazobeton, ceramika, silikaty
Strop: betonowy gęstożebrowy, drewniany
Schody: dwubiegowe
Ścianka kolankowa: 110 cm
Dach: dwuspadowy, nachylenie 42°, pokrycie z dachówki, blachodachówki, gontu
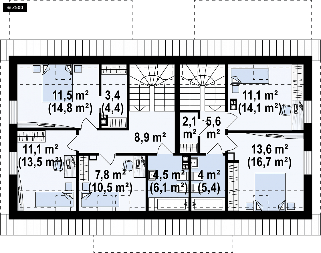
Z351 to dom dwulokalowy z tradycyjnym dachem dwuspadowym. Aranżację przyziemia stanowią klomby na tarasie. Elewację wykończono płytkami klinkierowymi. W połączeniu z kompozycją z pergoli są one znakomitym akcentem architektonicznym dopełniającym całość budynku. Parter to dzienna strefa domu. Stanowią go dwa oddzielne mieszkania połączone pomieszczeniem gospodarczym, które można zamknąć z każdej strony aby uzyskać efekt prywatności. Lewe skrzydło jest większe niż prawe. Pozwala nam to dysponować mieszkaniami w zależności od naszych potrzeb. Oddzielne sienie zaprojektowano po to, aby między rodzinami nie powstawały konflikty na tle zamiatania naniesionego piasku. Kolejny atut stanowią oddzielne łazienki, kuchnie, salon z jadalnią, gdzie znakomicie można wypocząć przy ciepłym kominku. Piętro to również dwa oddzielne mieszkania, niepołączone ze sobą przejściem jak w przypadku parteru. Lewe skrzydło posiada 3 pokoje, z których jeden sąsiaduje z przylegającą prywatną garderobą. Prawe skrzydło, mniejsze, posiada dwa pokoje i łazienkę oraz schowek na szczotki lub ubrania, to od nas i naszych potrzeb zależy jak wykorzystamy to pomieszczenie. Budynek dedykowany jest dla osób, które chcą jedno mieszkanie wynająć drugie zajmować samemu. Z biegiem czasu, gdy dzieci podrosną, mogą zamieszkiwać w jednym skrzydle a rodzice w drugim. Podkreślenie wejścia głównego oraz wejść tarasowych przez białe formy architektoniczne oraz kompozycja z pergolami stanowią kunsztowne wykończenie praktycznego domu dwulokalowego.

Dbamy o najlepszą ofertę dla naszych Inwestorów.

W kilka chwil wybierzesz z nami swój wymarzony dom.

Pomożemy Ci we wszystkich formalnościach, dostosujemy projekt do Twoich indywidualnych potrzeb.

Projekt wymarzonego domu może być u Ciebie nawet następnego dnia po zamówieniu.