Porozmawiaj z nami 7 dni w tygodniu 606 705 388, 692 715 791 lub napisz: biuro@domtodom.pl
| Powierzchnia użytkowa: | 134,00 m2 |
| Powierzchnia całkowita: | 184,40 m2 |
| Powierzchnia zabudowy: | 128,40 m2 |
| Kubatura: | 448,30 m3 |
| Wysokość budynku: | 7,68 m |
| Wysokość do okapu: | b.d. |
Ściany zewnętrzne: gazobeton, ceramika, silikaty
Strop: betonowy gęstożebrowy
Schody: dwubiegowe, wachlarzowe
Ścianka kolankowa: 79 cm
Dach: dwuspadowy, nachylenie 35°, pokrycie z dachówki, blachodachówki
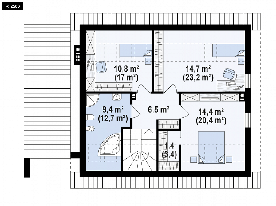
Z305 to bardzo funkcjonalny projekt domu z poddaszem o nowoczesnej stylizacji i współczesnym detalu. Prostą bryłę budynku zdobią jasne elementy z naturalnego drewna. Dwuspadowy dach w ciemnej kolorystyce dodaje mu elegancji i gustownego charakteru. Przestrzeń w salonie jest funkcjonalnie rozplanowana. Widoczne jest subtelne oddzielenie od jadalni. Poprzez delikatne wcięcie w salonie, uzyskano miejsce na wygodny taras. Takie rozwiązanie ułatwia umieszczenie domu na małej działce. Kolejną zaletą domu jest kuchnia zaprojektowana w kompozycji otwartej. Zwiększa to znacznie dostępną przestrzeń oraz ułatwia dojście do jadalni. Kuchnia została wyposażona w pomieszczenie pomocnicze na niezbędne kuchenne produkty i sprzęty. Strefa dzienna została wyposażona w małą łazienkę i miejsca na szafy. Strefę nocną na piętrze tworzą trzy duże sypialnie z przestronną łazienką. Po kój rodziców posiada własną garderobę. W projekcie znajduje się także garaż jednostanowiskowy z bezpośrednim przejściem do sieni.

Dbamy o najlepszą ofertę dla naszych Inwestorów.

W kilka chwil wybierzesz z nami swój wymarzony dom.

Pomożemy Ci we wszystkich formalnościach, dostosujemy projekt do Twoich indywidualnych potrzeb.

Projekt wymarzonego domu może być u Ciebie nawet następnego dnia po zamówieniu.