Porozmawiaj z nami 7 dni w tygodniu 606 705 388, 692 715 791 lub napisz: biuro@domtodom.pl
| Powierzchnia użytkowa: | 160,10 m2 |
| Powierzchnia całkowita: | 223,00 m2 |
| Powierzchnia zabudowy: | 149,10 m2 |
| Kubatura: | 548,40 m3 |
| Wysokość budynku: | 8,06 m |
| Wysokość do okapu: | b.d. |
Ściany zewnętrzne: gazobeton, ceramika, silikaty
Strop: betonowy gęstożebrowy
Schody: dwubiegowe
Ścianka kolankowa: 100 cm
Dach: dwuspadowy, nachylenie 38°, pokrycie z dachówki, blachodachówki
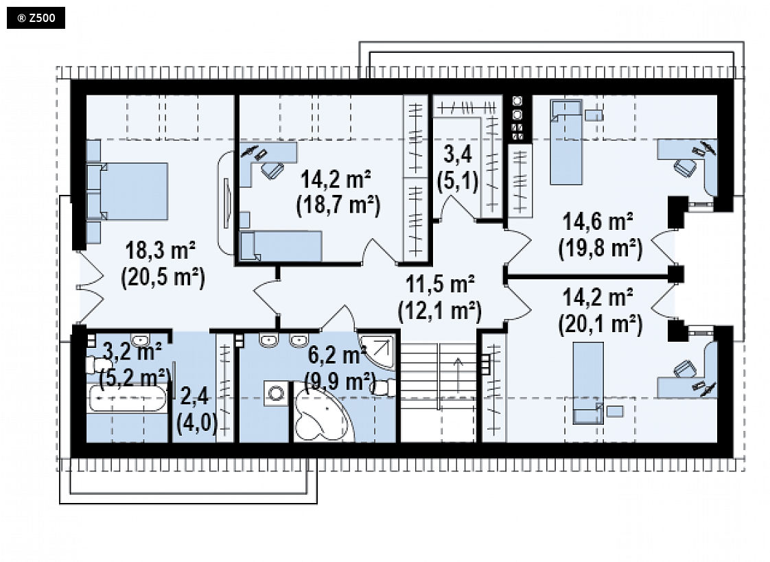
Projekt Z238 to dom z dwuspadowym dachem i garażem dwustanowiskowym. Zwarta bryła oraz przemyślany i sprawdzony układ pomieszczeń powodują, że dom jest wygodny i funkcjonalny. Z podcienia wejściowego przechodzimy do sieni, w której wydzielono miejsce na szafy. Z centralnie zlokalizowanego holu jest dostęp do strefy dziennej, którą tworzy przestronny salon połączony jednoprzestrzennie z kuchnią i jadalnią. Na parterze znajduje się również gabinet, łazienka z pomieszczeniem gospodarczym i dwustanowiskowy garaż. Na piętrze umieszczono cztery sypialnie, w tym jedną z prywatną łazienką i garderobą. Duża, wspólna łazienka pomieści prysznic i wannę, dodatkowo posiada ona wydzielone miejsce na pralnię. W każdym z pokoi znajdzie się miejsce na szafy. Z238 to propozycja dla osób szukających domu o funkcjonalnym wnętrzu. Pełna gama pomieszczeń sprawia, że znajdzie się tu miejsce dla każdego z domowników.

Dbamy o najlepszą ofertę dla naszych Inwestorów.

W kilka chwil wybierzesz z nami swój wymarzony dom.

Pomożemy Ci we wszystkich formalnościach, dostosujemy projekt do Twoich indywidualnych potrzeb.

Projekt wymarzonego domu może być u Ciebie nawet następnego dnia po zamówieniu.