Porozmawiaj z nami 7 dni w tygodniu 606 705 388, 692 715 791 lub napisz: biuro@domtodom.pl
| Powierzchnia użytkowa: | 144,10 m2 |
| Powierzchnia całkowita: | 190,50 m2 |
| Powierzchnia zabudowy: | 127,50 m2 |
| Kubatura: | 537,35 m3 |
| Wysokość budynku: | 7,87 m |
| Wysokość do okapu: | b.d. |
Ściany zewnętrzne: gazobeton, ceramika, silikaty
Strop: betonowy gęstożebrowy
Schody: dwubiegowe
Ścianka kolankowa: 96 cm
Dach: dwuspadowy, nachylenie 38°, pokrycie z dachówki, blachodachówki
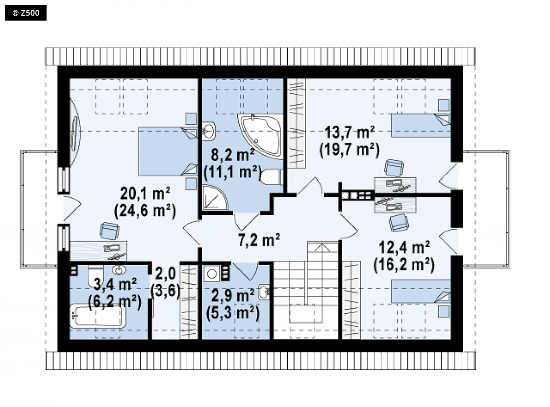
Projekt Z235 to piętrowy dom z dwuspadowym dachem i jednostanowiskowym garażem. Efektowne wykończenie elewacji, poprzez wkomponowanie drewnianych elementów podkreśla jego wyjątkowy charakter. Wnętrze domu jest wygodne i funkcjonalne, podzielone na strefy. Parter to część dzienna domu, znajduje się tu przestronny salon połączony częściowo z jadalnią w wykuszu i kuchnią. Z pokoju dziennego jest możliwość wyjścia na taras. W lewej części domu zlokalizowano pokój, który może służyć jako gabinet lub pokój gościnny, oraz łazienkę z prysznicem. Piętro to strefa wypoczynkowa z trzema wygodnymi, obszernymi sypialniami, dwoma łazienkami i pralnią. Główna sypialnia posiada własną łazienkę. Z235 to idealna propozycja dla osób lubiących innowacyjne rozwiązania. Dom łączy w sobie najlepsze cechy domu jednorodzinnego: jest praktyczny w użytkowaniu i nietypowy w wyglądzie.

Dbamy o najlepszą ofertę dla naszych Inwestorów.

W kilka chwil wybierzesz z nami swój wymarzony dom.

Pomożemy Ci we wszystkich formalnościach, dostosujemy projekt do Twoich indywidualnych potrzeb.

Projekt wymarzonego domu może być u Ciebie nawet następnego dnia po zamówieniu.