Porozmawiaj z nami 7 dni w tygodniu 606 705 388, 692 715 791 lub napisz: biuro@domtodom.pl
| Powierzchnia użytkowa: | 149,20 m2 |
| Powierzchnia całkowita: | 200,10 m2 |
| Powierzchnia zabudowy: | 126,20 m2 |
| Kubatura: | 496,40 m3 |
| Wysokość budynku: | 8,15 m |
| Wysokość do okapu: | b.d. |
Ściany zewnętrzne: gazobeton, ceramika, silikaty
Strop: betonowy gęstożebrowy
Schody: dwubiegowe
Ścianka kolankowa: 96 cm
Dach: dwuspadowy, nachylenie 38°, pokrycie z dachówki, blachodachówki
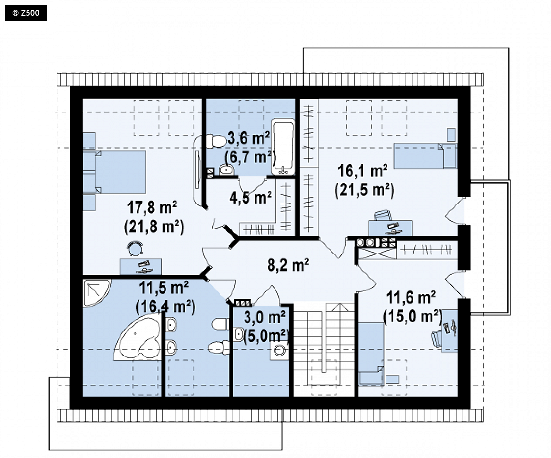
Projekt Z234 to dom parterowy z poddaszem użytkowym i garażem jednostanowiskowym. Elegancki obszerny dom o zgrabnej bryle zwieńczony dwuspadowym dachem. Wykończenie elewacji ciekawymi materiałami daje efekt tradycyjnej szykowności we współczesnym wydaniu. Funkcjonalny układ pomieszczeń pozwala na optymalne wykorzystanie przestrzeni. Na parterze znajduje się strefa dzienna z salonem, jadalnią w wykuszu i kuchnią. Dzięki umieszczeniu, na środku części dziennej, pomieszczenia gospodarczego poszczególne przestrzenie są częściowo wydzielone. Z holu dostępna jest łazienka z prysznicem oraz gabinet. Bezpośrednie przejście z sieni do garażu ułatwi np. wnoszenie zakupów. Na poddaszu zaplanowano komfortową strefę nocną, którą tworzą trzy wygodne sypialnie, w tym jedna z własną łazienką i garderobą. Duża, wspólna łazienka pomieści prysznic i wannę. Z234 jest domem dla osób ceniących funkcjonalność w połączeniu z współczesnym wyglądem.

Dbamy o najlepszą ofertę dla naszych Inwestorów.

W kilka chwil wybierzesz z nami swój wymarzony dom.

Pomożemy Ci we wszystkich formalnościach, dostosujemy projekt do Twoich indywidualnych potrzeb.

Projekt wymarzonego domu może być u Ciebie nawet następnego dnia po zamówieniu.