Porozmawiaj z nami 7 dni w tygodniu 606 705 388, 692 715 791 lub napisz: biuro@domtodom.pl
| Powierzchnia użytkowa: | 148,80 m2 |
| Powierzchnia całkowita: | 206,50 m2 |
| Powierzchnia zabudowy: | 158,00 m2 |
| Kubatura: | 489,75 m3 |
| Wysokość budynku: | 6,85 m |
| Wysokość do okapu: | b.d. |
Ściany zewnętrzne: gazobeton, ceramika, silikaty
Strop: betonowy gęstożebrowy
Schody: dwubiegowe, wachlarzowe
Ścianka kolankowa: 30 cm
Dach: wielospadowy, nachylenie 32°/22°, pokrycie z dachówki, blachodachówki
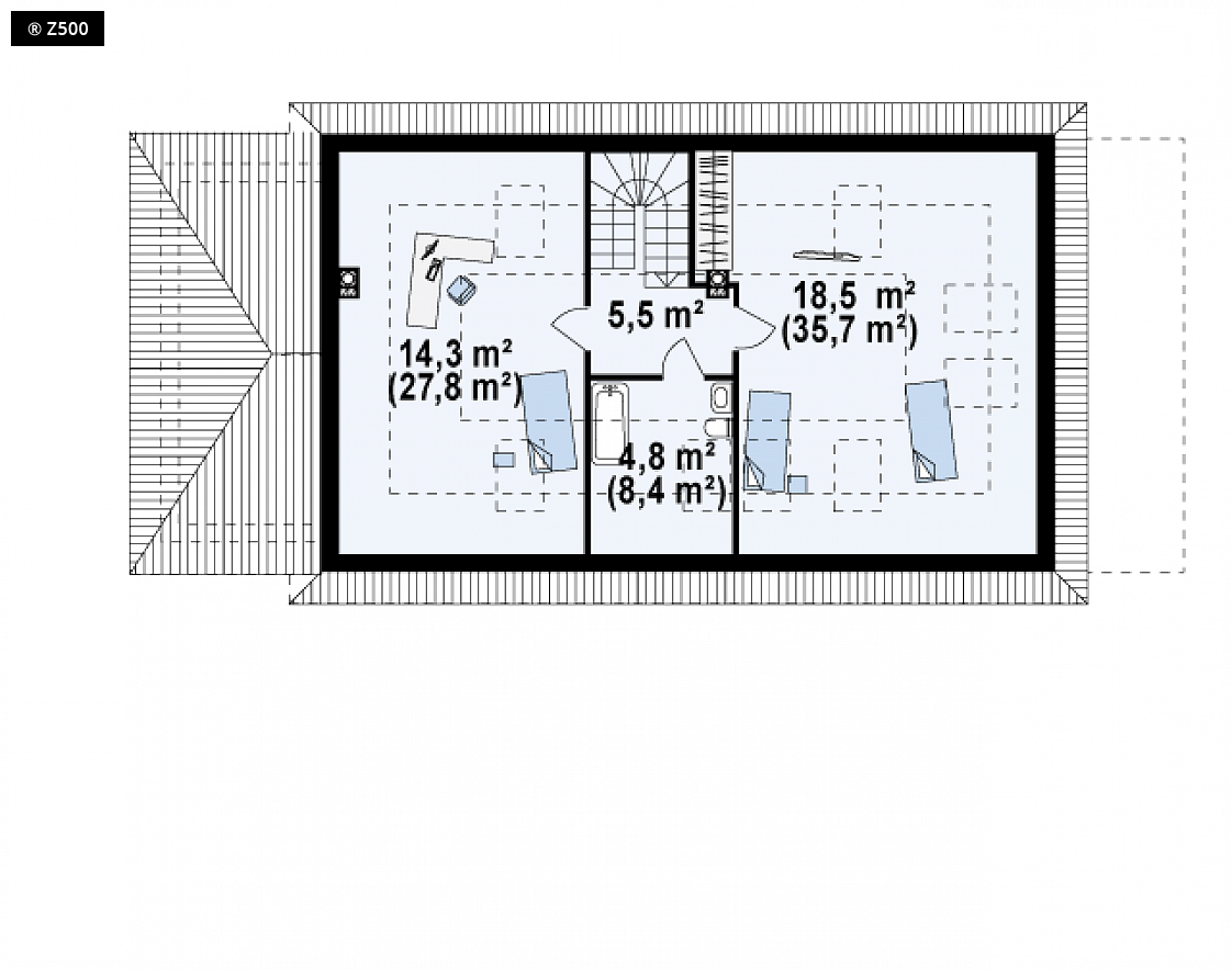
Projekt domu Z90 to ciekawa propozycję budynku z poddaszem i bocznym garażem. Jest to dom o prostej bryle, przekryty kopertowym dachem. Wejście do budynku zaakcentowane jest małym podcieniem. Sień, z której istnieje możliwość przejścia do spiżarki, oraz hol dzielą parter domu na dwie części. Z centralnie umieszczonego holu mamy swobodny dostęp do strefy dziennej, czyli salonu z kuchnią, oraz nocnej . Projekt uwzględnia także duże pomieszczenie gospodarcze z bezpośrednim przejściem do garażu. W części prywatnej znajduje się sypialnia oraz przestronna łazienka. Z holu wydzielono klatkę schodową prowadzącą na poddasze, gdzie znajdują się dwie przestronne sypialnie. W razie potrzeby poddasze można zaaranżować tak aby powstały 3 pokoje. W podstawowym wariancie Z90 przewidziano możliwość rezygnacji z okien w tylnej ścianie budynku, co może okazać się korzystne dla nieustawnych działek. Jako opcja przewidzieliśmy także wariant z oknami i tarasem na tylnej ścianie.

Dbamy o najlepszą ofertę dla naszych Inwestorów.

W kilka chwil wybierzesz z nami swój wymarzony dom.

Pomożemy Ci we wszystkich formalnościach, dostosujemy projekt do Twoich indywidualnych potrzeb.

Projekt wymarzonego domu może być u Ciebie nawet następnego dnia po zamówieniu.