Porozmawiaj z nami 7 dni w tygodniu 606 705 388, 692 715 791 lub napisz: biuro@domtodom.pl
| Powierzchnia użytkowa: | 202,70 m2 |
| Powierzchnia całkowita: | 248,70 m2 |
| Powierzchnia zabudowy: | 244,70 m2 |
| Kubatura: | 782,39 m3 |
| Wysokość budynku: | 8,35 m |
| Wysokość do okapu: | b.d. |
Ściany zewnętrzne: gazobeton, ceramika, silikaty
Strop: żelbetowy
Schody: dwubiegowe
Ścianka kolankowa: -
Dach: płaski, nachylenie 2°, pokrycie z papy bitumicznej, folii PVC, blachy
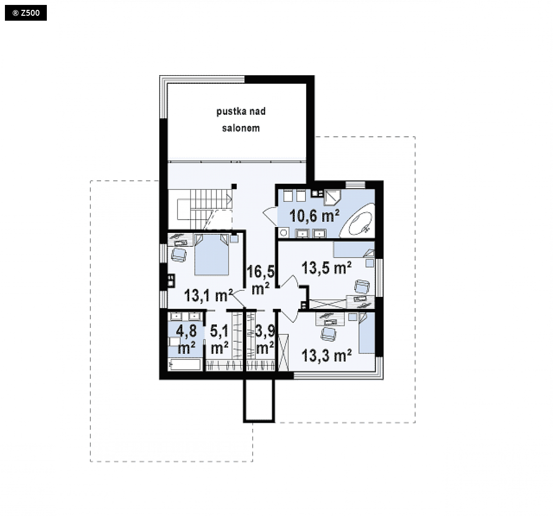
Zx108 to nowoczesny, dwukondygnacyjny dom z dużymi przeszkleniami, tarasami na piętrze oraz dużym garażem . Połączenie ciemnej elewacji z wykończeniem z egzotycznego drewna doskonale komponuje się z chłodną bielą tynku i zielenią ogrodu. We wnętrzu poszczególne strefy życia dziennego wydzielono za pomocą akcentów takich jak: narożny kominek pomiędzy salonem i jadalnią czy kuchenna „wyspa” z bufetem. Na parterze znajduje się dodatkowy pokój/gabinet oraz obszerna część gospodarcza z garażem dwustanowiskowym. Piętro to strefa nocna domu. Zlokalizowano tu trzy przestronne sypialnie - każda z indywidualnym wyjściem na taras oraz dwie łazienki - garderoby. Ten nowoczesny dom prezentuje się najlepiej na dużych podmiejskich działkach oraz w zwartej miejskiej zabudowie. Projekt ZX108 przypadnie do gustu osobom, szukającym funkcjonalnych i sprawdzonych rozwiązań w nowoczesnej formie.

Dbamy o najlepszą ofertę dla naszych Inwestorów.

W kilka chwil wybierzesz z nami swój wymarzony dom.

Pomożemy Ci we wszystkich formalnościach, dostosujemy projekt do Twoich indywidualnych potrzeb.

Projekt wymarzonego domu może być u Ciebie nawet następnego dnia po zamówieniu.