Porozmawiaj z nami 7 dni w tygodniu 606 705 388, 692 715 791 lub napisz: biuro@domtodom.pl
| Powierzchnia użytkowa: | 105,40 m2 |
| Powierzchnia całkowita: | 125,80 m2 |
| Powierzchnia zabudowy: | b.d. |
| Kubatura: | b.d. |
| Wysokość budynku: | 7,05 m |
| Wysokość do okapu: | b.d. |
Ściany zewnętrzne: szkielet drewniany
Strop: drewniany, wiązary
Schody: zabiegowe
Ścianka kolankowa: -
Dach: płaski, nachylenie 3°, pokrycie z papy bitumicznej, folii PVC, blachy
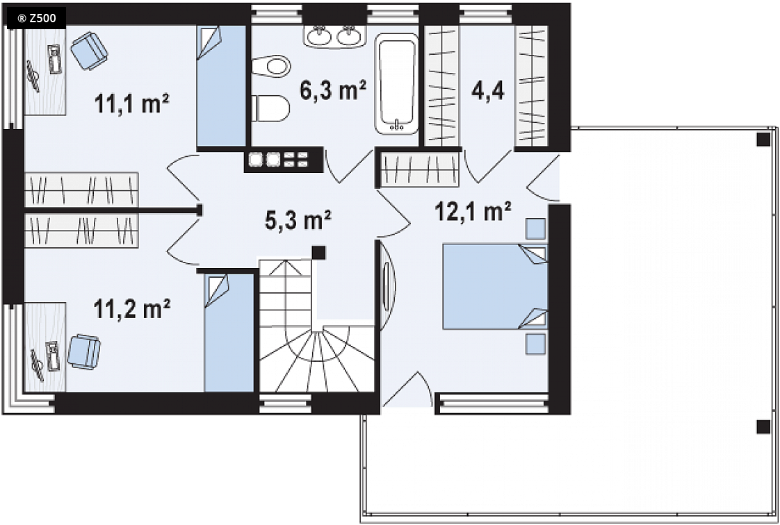
Zx63 to optymalnie zaprojektowany nowoczesny dom z garażem w bryle. Salon wraz z rozległym tarasem, zadaszonym drewnianą pergolą mieści się od frontu (południa), natomiast kuchnia posiada okna z widokiem na ogród. Salon połączony z kuchnią i jadalnią tworzy otwartą przestrzeń, dobrze doświetloną przeszkleniami do samej ziemi. Obok kuchni dostępna jest spora spiżarka. Kominek usytuowany jest w sercu domu - można podziwiać jego uroki z jadalni oraz z kanapy w salonie. Na parterze znajduje się dodatkowy pokój z oknem na ogród. Może pełnić funkcję pokoju gościnnego, gabinetu do pracy jak również sypialni rodziców. Obok pokoju zlokalizowana jest łazienka, z miejscem na prysznic. Na piętrze, które ma pełną wysokość 265 cm (bez skosów !), znajdują się dwa pokoje dobrze doświetlone z miejscami na szafy oraz sypialnia z prywatnym wyjściem na taras nad garażem oraz osobną garderobą. Wspólna łazienka, doświetlona dwoma pełnowymiarowymi oknami pomieści wygodną wannę Garaż połączony jest bezpośrednio z domem poprzez wspólną sień z miejscem na długą szafę na odzienie wierzchnie. Dom w wersji podstawowej posiada garaż jednostanowiskowy w bryle, z możliwością powiększenia do dwóch stanowisk.

Dbamy o najlepszą ofertę dla naszych Inwestorów.

W kilka chwil wybierzesz z nami swój wymarzony dom.

Pomożemy Ci we wszystkich formalnościach, dostosujemy projekt do Twoich indywidualnych potrzeb.

Projekt wymarzonego domu może być u Ciebie nawet następnego dnia po zamówieniu.