Porozmawiaj z nami 7 dni w tygodniu 606 705 388, 692 715 791 lub napisz: biuro@domtodom.pl
| Powierzchnia użytkowa: | 348,30 m2 |
| Powierzchnia całkowita: | 465,40 m2 |
| Powierzchnia zabudowy: | 345,90 m2 |
| Kubatura: | 1172,80 m3 |
| Wysokość budynku: | 8,77 m |
| Wysokość do okapu: | b.d. |
Ściany zewnętrzne: gazobeton, ceramika, silikaty
Strop: betonowy gęstożebrowy
Schody: dwubiegowe
Ścianka kolankowa: 39 cm
Dach: wielospadowy, nachylenie 32°, pokrycie z dachówki, blachodachówki
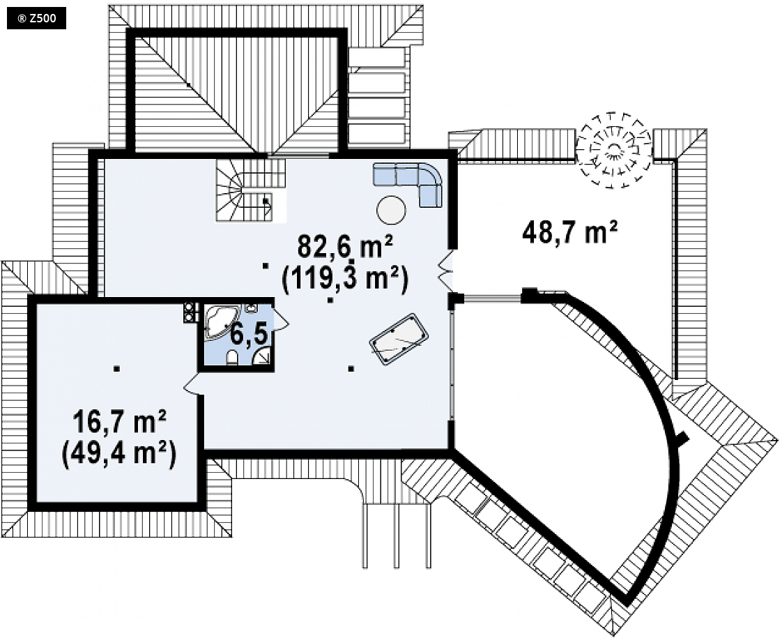
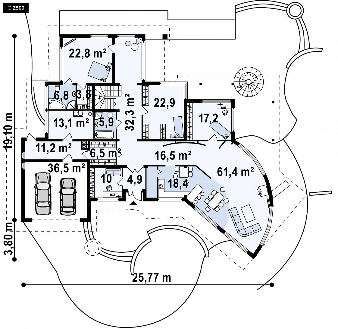
Zr5 to rozłożysta i wyjątkowa rezydencja z komfortowym podziałem funkcjonalnym i miejscem na dwa samochody. Z zewnątrz przypomina projekt Zr2, który był bazą, jednak jego wnętrze jest całkowicie inne. Rezydencja doskonale nadaje się zarówno do celów komercyjnych jak i całorocznego zamieszkania. Tutaj architekturą jest oryginalna bryła i niesamowicie proporcjonalny, płynący dach, z wieloma liniami falistymi, dającymi wrażenie lekkości i zwinności domowi. Do tego duże okna tarasowe do samej ziemi, elementy drewna, oraz podpora dachu w miejscu otwarcia wnętrza na ogród, dopełniają całkowicie styl tej robiącej wrażenie rezydencji. Ażurowe fragmenty dachu pozwalają wpłynąć większej ilości światła dziennego do wewnątrz! Wszystkie dodatki są dobrane przez architekta z idealną precyzją. Przestrzeń jaką oferuje wnętrze tego domu jest ogromna. Duże przeszklenia pozwalają na swobodne wpadanie promieni słońca i naturalne jego doświetlanie. Salon ma oryginalny kształt łuku, rzadko spotykany w domach jednorodzinnych. Jest to wyjątkowy element. Będąc w jego wnętrzu można mieć poczucie obcowania z otaczającą przyrodą dzięki dużym oknom zlokalizowanym na każdej ze ścian tego pomieszczenia. Sąsiadująca kuchnia posiada narożny barek oraz własną, podręczną spiżarkę. Na parterze znajdują się również trzy przestronne pokoje gościnne oraz gabinet do pracy, z dużym oknem od frontu (można zamienić na drzwi przeszklone). Dwie łazienki, spora pralnia oraz duży hol to dodatkowe zalety tego projektu. Dwustanowiskowy garaż zawiera własne pomieszczenie gospodarcze, z odrębnym wyjściem na ogród. Wygodnie jest przechowywać tam wszelkie sprzęty ogrodowe oraz wstawić piec do ogrzania domu chłodną porą. Piętro to przestrzeń do wolnego zagospodarowania tzw. open space. Jest to świetne miejsce na stół do billarda, pokój gier czy prawdziwe kino domowe. Od strony ogrodu, na taras na piętrze, prowadzą zewnętrzne kręcone schody, które są jednocześnie istotnym elementem architektury tego domu. Zr5 to niezwykle przestronna rezydencja dla indywidualistów i koneserów. Szczególnie dobrze prezentuje się na większym terenie.

Dbamy o najlepszą ofertę dla naszych Inwestorów.

W kilka chwil wybierzesz z nami swój wymarzony dom.

Pomożemy Ci we wszystkich formalnościach, dostosujemy projekt do Twoich indywidualnych potrzeb.

Projekt wymarzonego domu może być u Ciebie nawet następnego dnia po zamówieniu.