Porozmawiaj z nami 7 dni w tygodniu 606 705 388, 692 715 791 lub napisz: biuro@domtodom.pl
| Powierzchnia użytkowa: | 134,10 m2 |
| Powierzchnia całkowita: | 155,80 m2 |
| Powierzchnia zabudowy: | 103,30 m2 |
| Kubatura: | 410,35 m3 |
| Wysokość budynku: | 9,33 m |
| Wysokość do okapu: | b.d. |
Ściany zewnętrzne: gazobeton, ceramika, silikaty
Strop: betonowy gęstożebrowy
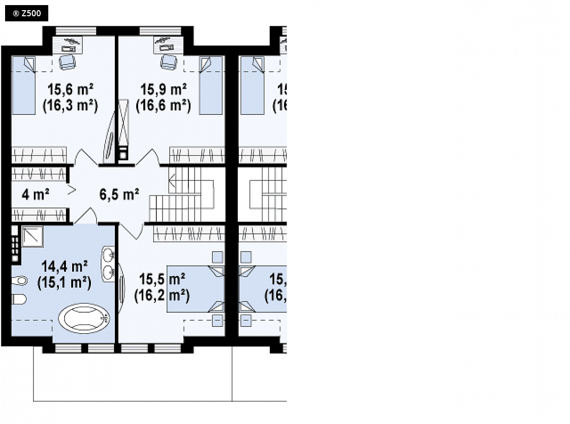
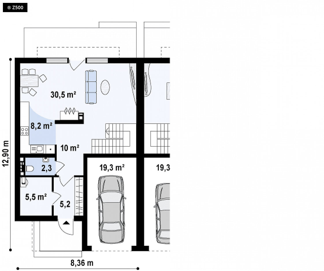
Schody: dwubiegowe
Ścianka kolankowa: 161 cm
Dach: dwuspadowy, nachylenie 35/5°, pokrycie z dachówki, blachodachówki
Zb5 to ciekawa propozycja domu do zabudowy bliźniaczej w nowoczesnym stylu. Prosta konstrukcja oraz dwuspadowy dach czynią go tanią i łatwą w budowie inwestycją. Niespotykany wykusz od strony ogrodu oraz naturalne, drewniane okładziny elewacji uwydatniają nowatorski charakter zabudowy.Część dzienną segmentu stanowi przestronny, jasny salon z centralnie usytuowanym kominkiem. Otwarta kompozycja kuchni powiększy optycznie wnętrze a centralnie umieszczone otwarte schody mogą być ozdobą wnętrza. Duże powierzchnie przeszkleń pozwalają na naturalne doświetlanie i ogrzanie wnętrza. Na parterze do dyspozycji mieszkańców znajduje się również niewielka toaleta oraz podręczne pomieszczenie gospodarcze. Na piętrze znajdują się trzy, przestronne sypialnie. Duża łazienka zapewni komfort codziennej toalety, a spora garderoba z łatwością pomieści ubrania domowników.

Dbamy o najlepszą ofertę dla naszych Inwestorów.

W kilka chwil wybierzesz z nami swój wymarzony dom.

Pomożemy Ci we wszystkich formalnościach, dostosujemy projekt do Twoich indywidualnych potrzeb.

Projekt wymarzonego domu może być u Ciebie nawet następnego dnia po zamówieniu.