Porozmawiaj z nami 7 dni w tygodniu 606 705 388, 692 715 791 lub napisz: biuro@domtodom.pl
| Powierzchnia użytkowa: | 150,00 m2 |
| Powierzchnia całkowita: | 206,95 m2 |
| Powierzchnia zabudowy: | 152,42 m2 |
| Kubatura: | 784,33 m3 |
| Wysokość budynku: | 8,35 m |
| Wysokość do okapu: | 3,61 m |
Ściany zewnętrzne: pustak ceramiczny 25 cm + styropian 15 cm
Strop: monolityczny, żelbetowy
Schody: dwubiegowe
Ścianka kolankowa: -
Dach: dwuspadowy, nachylenie 40°, pokrycie z dachówki ceramicznej lub betonowej
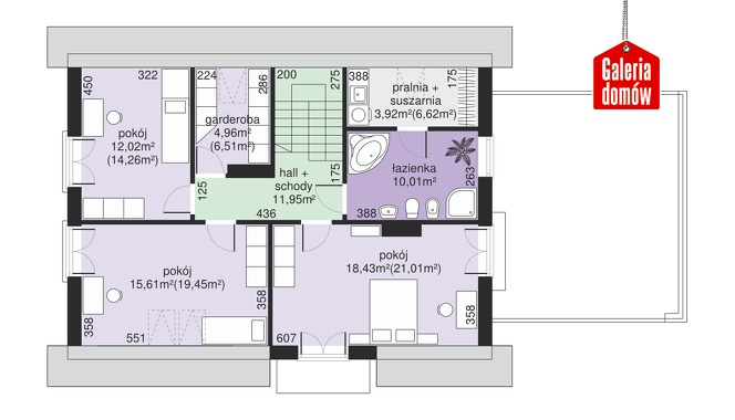
Dom przy Alabastrowej 12 przygotowany jest do lokalizacji na działkach z wjazdem od strony południowej, południowo-wschodniej lub w odbiciu lustrzanym od strony południowo-zachodniej. Nowoczesna forma architektoniczna domu dzięki zastosowaniu odpowiedniego zestawu barw ma przyjazny charakter. Pomieszczenia użytku dziennego są zestawione w układzie jednoprzestrzennym, maksymalizującym doznania przestronności. Program użytkowy domu jest wzbogacony rozbudowanym zapleczem gospodarczym.

Dbamy o najlepszą ofertę dla naszych Inwestorów.

W kilka chwil wybierzesz z nami swój wymarzony dom.

Pomożemy Ci we wszystkich formalnościach, dostosujemy projekt do Twoich indywidualnych potrzeb.

Projekt wymarzonego domu może być u Ciebie nawet następnego dnia po zamówieniu.