Porozmawiaj z nami 7 dni w tygodniu 606 705 388, 692 715 791 lub napisz: biuro@domtodom.pl
| Powierzchnia użytkowa: | 139,30 m2 |
| Powierzchnia całkowita: | 181,50 m2 |
| Powierzchnia zabudowy: | 157,80 m2 |
| Kubatura: | 482,49 m3 |
| Wysokość budynku: | 7,10 m |
| Wysokość do okapu: | b.d. |
Ściany zewnętrzne: gazobeton, ceramika, silikaty
Strop: żelbetowy
Schody: dwubiegowe
Ścianka kolankowa: -
Dach: płaski, nachylenie 1°, pokrycie z papy bitumicznej, folii PVC, blachy
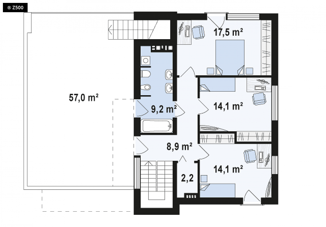
Zx54 to funkcjonalny piętrowy dom w nowoczesnym stylu. Ciekawe elementy wykończenia elewacji nadają mu wyjątkowego charakteru. Projekt wyróżnia obszerny taras nad garażem, dostępny zarówno z poziomu piętra jak i z ogrodu. Strefa dzienna to komfortowy salon połączony z kuchnią oraz jadalnią. Kuchnię zaprojektowano jako otwartą z modną wyspą na środku. Można ją łatwo oddzielić od pozostałych pomieszczeń ścianką działową. Stół w jadalni umiejscowiono przy dużym oknie balkonowym. Pozwoli to w ciepłe dni wygodnie przenieść posiłek na taras. Dodatkowo na parterze zaprojektowano gabinet z wejściem z sieni. Wygodne schody ze spocznikiem prowadzą do strefy nocnej. Znajdują się tam dwie niemal identyczne sypialnie oraz większy pokój dla gospodarzy z dużym oknem skierowanym na ogród. Ogólnodostępna łazienka posiada wyjście na taras, które umożliwi latem relaks w otoczeniu natury czy uprzyjemni proste czynności, jak pranie.

Dbamy o najlepszą ofertę dla naszych Inwestorów.

W kilka chwil wybierzesz z nami swój wymarzony dom.

Pomożemy Ci we wszystkich formalnościach, dostosujemy projekt do Twoich indywidualnych potrzeb.

Projekt wymarzonego domu może być u Ciebie nawet następnego dnia po zamówieniu.