Porozmawiaj z nami 7 dni w tygodniu 606 705 388, 692 715 791 lub napisz: biuro@domtodom.pl
| Powierzchnia użytkowa: | 109,20 m2 |
| Powierzchnia całkowita: | 156,10 m2 |
| Powierzchnia zabudowy: | 189,90 m2 |
| Kubatura: | 404,17 m3 |
| Wysokość budynku: | 6,95 m |
| Wysokość do okapu: | b.d. |
Ściany zewnętrzne: gazobeton, ceramika, silikaty
Strop: betonowy gęstożebrowy
Schody: brak
Ścianka kolankowa: brak
Dach: dwuspadowy, nachylenie 30°/2°, pokrycie z dachówki, blachodachówki
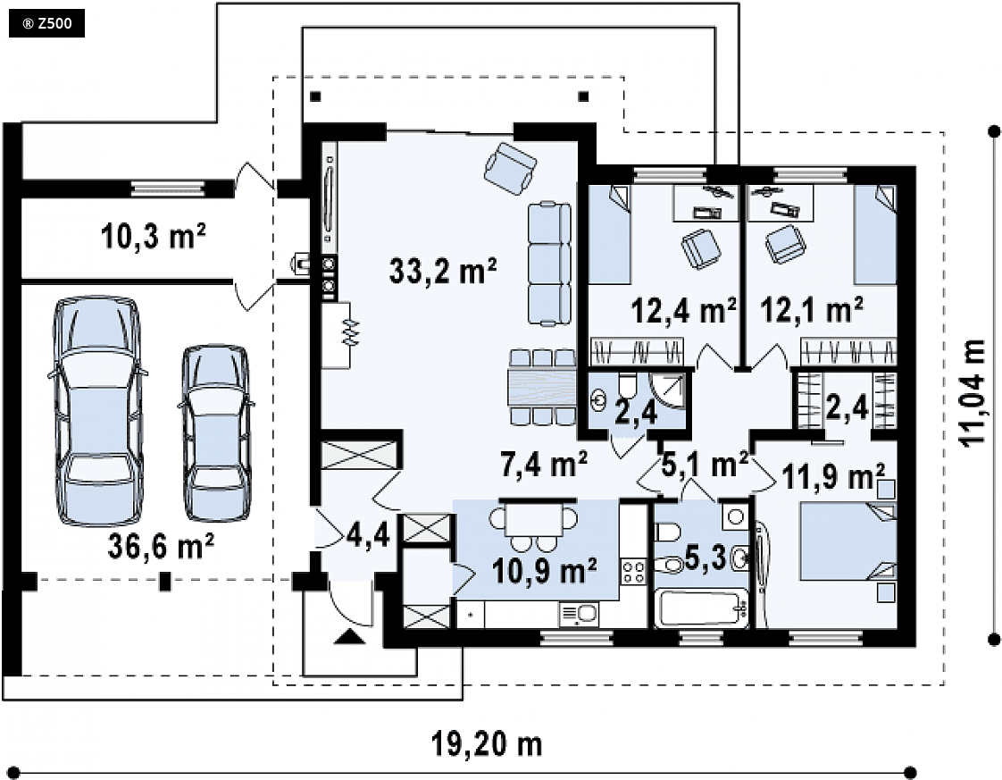
Z182 to dom parterowy we współczesnym stylu. Główną zaletą jest duży garaż dwustanowiskowy z bezpośrednim przejściem do domu oraz możliwość powiększenia o poddasze użytkowe. Prosta, zwarta bryła z dachem dwuspadowym i jeden komin czynią ten dom energooszczędnym i ekonomicznym w budowie. Duży podcień wejściowy, drewniane okładziny nadają bryle nowoczesny wygląd. W projekcie przewidziano funkcjonalne pomieszczenie gospodarcze z wyjściem do ogrodu oraz zadaszone miejsce na przechowywanie drewna do kominka. Układ funkcjonalny jest czytelny. Strefa dzienna to duży salon z jadalnią i centralnie usytuowanym kominkiem. Kuchnie zaprojektowano w kompozycji częściowo otwartej z możliwością całkowitego oddzielenia od holu. Dodatkowe pomieszczenia pomocnicze to niewielka spiżarnia i wc z prysznicem. Strefa nocna została wyraźnie oddzielona. Tworzą ją trzy obszerne sypialnie oraz łazienka z wanną i oknem. Główna sypialnia posiada własną pojemną garderobę.

Dbamy o najlepszą ofertę dla naszych Inwestorów.

W kilka chwil wybierzesz z nami swój wymarzony dom.

Pomożemy Ci we wszystkich formalnościach, dostosujemy projekt do Twoich indywidualnych potrzeb.

Projekt wymarzonego domu może być u Ciebie nawet następnego dnia po zamówieniu.