Porozmawiaj z nami 7 dni w tygodniu 606 705 388, 692 715 791 lub napisz: biuro@domtodom.pl
| Powierzchnia użytkowa: | 98,50 m2 |
| Powierzchnia całkowita: | 108,60 m2 |
| Powierzchnia zabudowy: | 76,90 m2 |
| Kubatura: | 260,90 m3 |
| Wysokość budynku: | 7,94 m |
| Wysokość do okapu: | b.d. |
Ściany zewnętrzne: gazobeton, ceramika, silikaty
Strop: betonowy gęstożebrowy
Schody: dwubiegowe, wachlarzowe
Ścianka kolankowa: 101 cm
Dach: dwuspadowy, nachylenie 40°, pokrycie z dachówki, blachodachówki
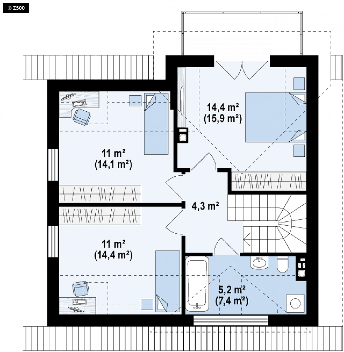
Z163 to mały i funkcjonalny dom z dwuspadowym dachem. Prosta bryłę urozmaica zgrabny wykusz od strony ogrodu oraz lukarna nad wejściem. Ciekawe elementy wykończenia elewacji oraz forma zadaszenia nadają mu elegancji i nowoczesnego stylu. Parter to przestronna część dzienna wyraźnie podzielona na 3 strefy - spora kuchnia ze spiżarką, przestronna jadalnia z wyjściem na zadaszony taras oraz wygodny salon z centralnie ulokowanym kominkiem. Pod schodami znajduje się wc, a pojemna szafa w sieni pomieści odzież wierzchnią oraz obuwie domowników. Na poddaszu znajdują się trzy pokoje. Dwie niemal bliźniacze sypialnie posiadają podobna powierzchnię. Nieco większa jest główna sypialnia rodziców zaprojektowana z wykuszem i wygodnym wyjściem na balkon. Ogólnodostępną łazienkę doświetla nowoczesne w formie, trójkątne okno. Z163 to kompaktowy dom, idealny dla 3-4 osobowej rodziny. Jego funkcjonalność, prosta bryła ubrana w nowoczesne dodatki z pewnością urzeknie wielu inwestorów.

Dbamy o najlepszą ofertę dla naszych Inwestorów.

W kilka chwil wybierzesz z nami swój wymarzony dom.

Pomożemy Ci we wszystkich formalnościach, dostosujemy projekt do Twoich indywidualnych potrzeb.

Projekt wymarzonego domu może być u Ciebie nawet następnego dnia po zamówieniu.