Porozmawiaj z nami 7 dni w tygodniu 606 705 388, 692 715 791 lub napisz: biuro@domtodom.pl
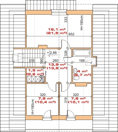
| Powierzchnia użytkowa: | 106,50 m2 |
| Powierzchnia całkowita: | 153,90 m2 |
| Powierzchnia zabudowy: | 110,00 m2 |
| Kubatura: | 590,00 m3 |
| Wysokość budynku: | 7,60 m |
| Wysokość do okapu: | 2,80 m |
Ściany zewnętrzne: pustak ceramiczny 44 cm
Strop: monolityczny, żelbetowy
Schody: dwubiegowe
Ścianka kolankowa: 127 cm
Dach: dwuspadowy, nachylenie 38°, pokrycie z dachówki ceramicznej lub betonowej
Uroczy dom z poddaszem doskonale wpisujący się w każde otoczenie. Nieskomplikowana bryła oraz dwuspadowy dach bez załamań gwarantują minimalne koszty budowy i późniejszej eksploatacji. Ciepła kolorystyka elewacji świetnie współgra z drewnianymi elementami wykończenia, co jeszcze bardziej podkreśla jego charakter. W programie użytkowym wykorzystano sprawdzone rozwiązania i dodano elementy zwiększające wygodę mieszkańców.

Dbamy o najlepszą ofertę dla naszych Inwestorów.

W kilka chwil wybierzesz z nami swój wymarzony dom.

Pomożemy Ci we wszystkich formalnościach, dostosujemy projekt do Twoich indywidualnych potrzeb.

Projekt wymarzonego domu może być u Ciebie nawet następnego dnia po zamówieniu.