Porozmawiaj z nami 7 dni w tygodniu 606 705 388, 692 715 791 lub napisz: biuro@domtodom.pl
| Powierzchnia użytkowa: | 213,20 m2 |
| Powierzchnia całkowita: | 254,50 m2 |
| Powierzchnia zabudowy: | 265,60 m2 |
| Kubatura: | 1077,00 m3 |
| Wysokość budynku: | 8,50 m |
| Wysokość do okapu: | 3,40 m |
Ściany zewnętrzne: pustak ceramiczny 29 cm, styropian 15 cm
Strop: monolityczny, żelbetowy
Schody: dwubiegowe
Ścianka kolankowa:-
Dach: wielospadowy, nachylenie 40°, pokrycie z dachówki ceramicznej lub betonowej
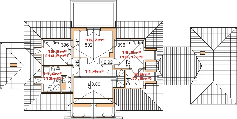
Projekt Dom przy Jaworowej zachowuje klasyczną bryłę przy zastosowaniu współczesnego rozplanowania wnętrza. Garaż jednostanowiskowy połączony jest z budynkiem zadaszenie. Na parterze zlokalizowany jest osobny pokój gościnny. Poddasze w całości przeznaczone zostało na strefę sypialną.

Dbamy o najlepszą ofertę dla naszych Inwestorów.

W kilka chwil wybierzesz z nami swój wymarzony dom.

Pomożemy Ci we wszystkich formalnościach, dostosujemy projekt do Twoich indywidualnych potrzeb.

Projekt wymarzonego domu może być u Ciebie nawet następnego dnia po zamówieniu.