Porozmawiaj z nami 7 dni w tygodniu 606 705 388, 692 715 791 lub napisz: biuro@domtodom.pl
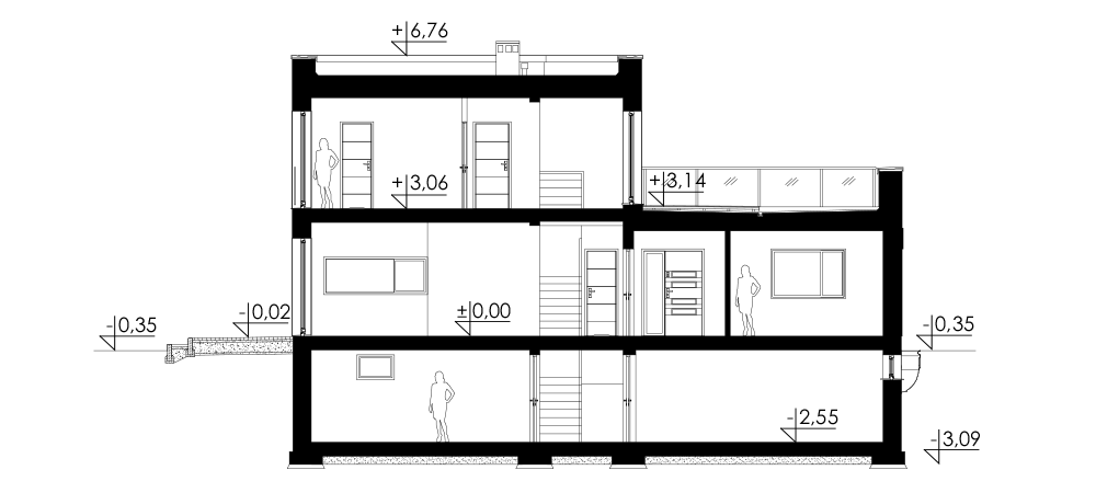
| Powierzchnia użytkowa: | 168,54 m2 |
| Powierzchnia całkowita: | 293,80 m2 |
| Powierzchnia zabudowy: | 147,20 m2 |
| Kubatura: | 1165,20 m3 |
| Wysokość budynku: | 7,11 m |
| Wysokość do okapu: | b.d. |
Nowoczesny piętrowy dom jednorodzinny z dachem płaskim, wolnostojący, podpiwniczony, dwukondygnacyjny z dużym garażem dwustanowiskowym. Na układ funkcjonalny składają się salon z wyjściem na taras, kuchnia z jadalnią, cztery pokoje, dwie łazienki, garderoba, garaż, cztery pomieszczenia gospodarcze w piwnicy, jedno na parterze oraz jedno na piętrze. Na parterze pokój może pełnić funkcję gabinetu usługowego. Nad częścią garażową przestronny taras.

Dbamy o najlepszą ofertę dla naszych Inwestorów.

W kilka chwil wybierzesz z nami swój wymarzony dom.

Pomożemy Ci we wszystkich formalnościach, dostosujemy projekt do Twoich indywidualnych potrzeb.

Projekt wymarzonego domu może być u Ciebie nawet następnego dnia po zamówieniu.