Porozmawiaj z nami 7 dni w tygodniu 606 705 388, 692 715 791 lub napisz: biuro@domtodom.pl
| Powierzchnia użytkowa: | 369,96 m2 |
| Powierzchnia całkowita: | 470,99 m2 |
| Powierzchnia zabudowy: | 238,75 m2 |
| Kubatura: | 1654,50 m3 |
| Wysokość budynku: | 8,79 m |
| Wysokość do okapu: | b.d. |
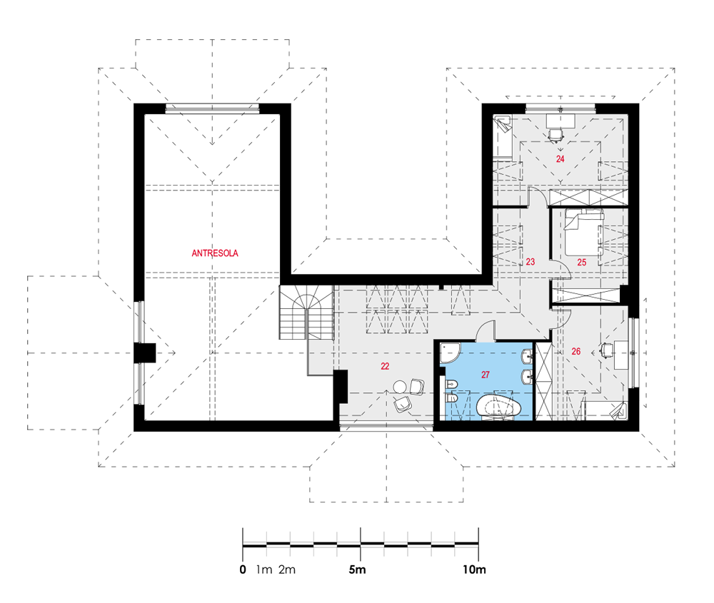
Duży i komfortowy dom jednorodzinny, wolnostojący, podpiwniczony z poddaszem i garażem dwustanowiskowym. W piwnicy duża strefa rekreacyjna z możliwością własnej aranżacji. Obszerna otwarta strefa dzienna na parterze z antresolą. Na układ funkcjonalny składają się pokój dzienny, sześć pokoi, kuchnia z jadalnią, trzy łazienki, WC, dwie garderoby, dwa pomieszczenia rekreacyjne, pralnia, dwa pomieszczenia gospodarcze, garaż.

Dbamy o najlepszą ofertę dla naszych Inwestorów.

W kilka chwil wybierzesz z nami swój wymarzony dom.

Pomożemy Ci we wszystkich formalnościach, dostosujemy projekt do Twoich indywidualnych potrzeb.

Projekt wymarzonego domu może być u Ciebie nawet następnego dnia po zamówieniu.