Porozmawiaj z nami 7 dni w tygodniu 606 705 388, 692 715 791 lub napisz: biuro@domtodom.pl
| Powierzchnia użytkowa: | 249,53 m2 |
| Powierzchnia całkowita: | 303,51 m2 |
| Powierzchnia zabudowy: | 217,90 m2 |
| Kubatura: | 1898,80 m3 |
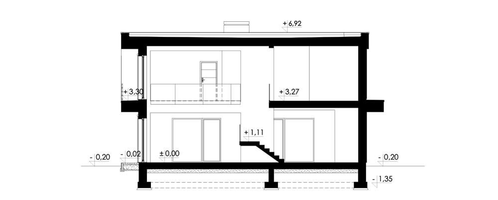
| Wysokość budynku: | 7,12 m |
| Wysokość do okapu: | b.d. |
Nowoczesny, piętrowy dom jednorodzinny, wolnostojący, z garażem dwustanowiskowym i płaskim dachem. Przestronna i duża strefa dzienna z licznymi tarasami. Na układ funkcjonalny składają się pokój dzienny i jadalnia z wyjściem na taras, kuchnia, trzy pokoje, trzy łazienki, garderoba, pralnia, garaż, pomieszczenie gospodarcze.

Dbamy o najlepszą ofertę dla naszych Inwestorów.

W kilka chwil wybierzesz z nami swój wymarzony dom.

Pomożemy Ci we wszystkich formalnościach, dostosujemy projekt do Twoich indywidualnych potrzeb.

Projekt wymarzonego domu może być u Ciebie nawet następnego dnia po zamówieniu.