Porozmawiaj z nami 7 dni w tygodniu 606 705 388, 692 715 791 lub napisz: biuro@domtodom.pl
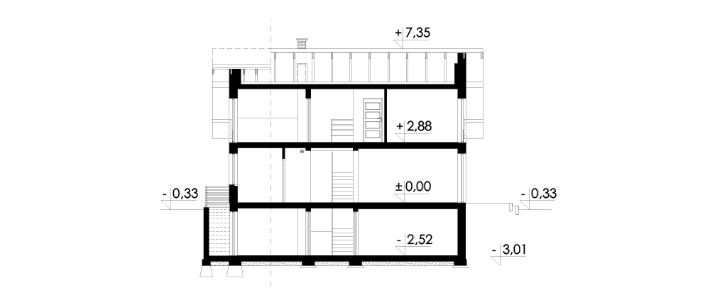
| Powierzchnia użytkowa: | 91,77 m2 |
| Powierzchnia całkowita: | 142,58 m2 |
| Powierzchnia zabudowy: | 71,20 m2 |
| Kubatura: | 474,10 m3 |
| Wysokość budynku: | 7,68 m |
| Wysokość do okapu: | b.d. |
Dom jednorodzinny, wolnostojący, podpiwniczony z poddaszem. Na układ funkcjonalny składają się salon z wyjściem na taras, 4 pokoje, kuchnia z jadalnią, 2 łazienki, kotłownia, pomieszczenie gospodarcze.

Dbamy o najlepszą ofertę dla naszych Inwestorów.

W kilka chwil wybierzesz z nami swój wymarzony dom.

Pomożemy Ci we wszystkich formalnościach, dostosujemy projekt do Twoich indywidualnych potrzeb.

Projekt wymarzonego domu może być u Ciebie nawet następnego dnia po zamówieniu.