Porozmawiaj z nami 7 dni w tygodniu 606 705 388, 692 715 791 lub napisz: biuro@domtodom.pl
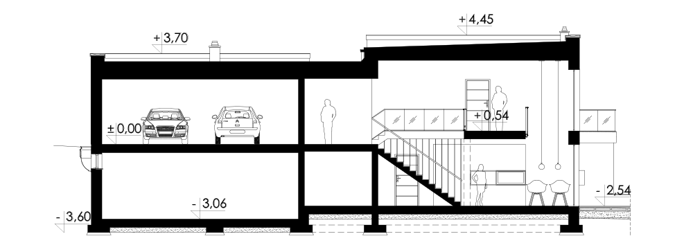
| Powierzchnia użytkowa: | 224,62 m2 |
| Powierzchnia całkowita: | 319,49 m2 |
| Powierzchnia zabudowy: | 199,95 m2 |
| Kubatura: | 1406,70 m3 |
| Wysokość budynku: | 6,97 m |
| Wysokość do okapu: | b.d. |
Dom jednorodzinny, wolnostojący, piętrowy z garażem dwustanowiskowym. Na układ funkcjonalny składają się salon z jadalnią i wyjściem na taras, kuchnia, cztery pokoje, spiżarnia, 2 łazienki, WC, garderoba, pokój hobby, garaż, dwa pomieszczenie gospodarcze.

Dbamy o najlepszą ofertę dla naszych Inwestorów.

W kilka chwil wybierzesz z nami swój wymarzony dom.

Pomożemy Ci we wszystkich formalnościach, dostosujemy projekt do Twoich indywidualnych potrzeb.

Projekt wymarzonego domu może być u Ciebie nawet następnego dnia po zamówieniu.