Porozmawiaj z nami 7 dni w tygodniu 606 705 388, 692 715 791 lub napisz: biuro@domtodom.pl
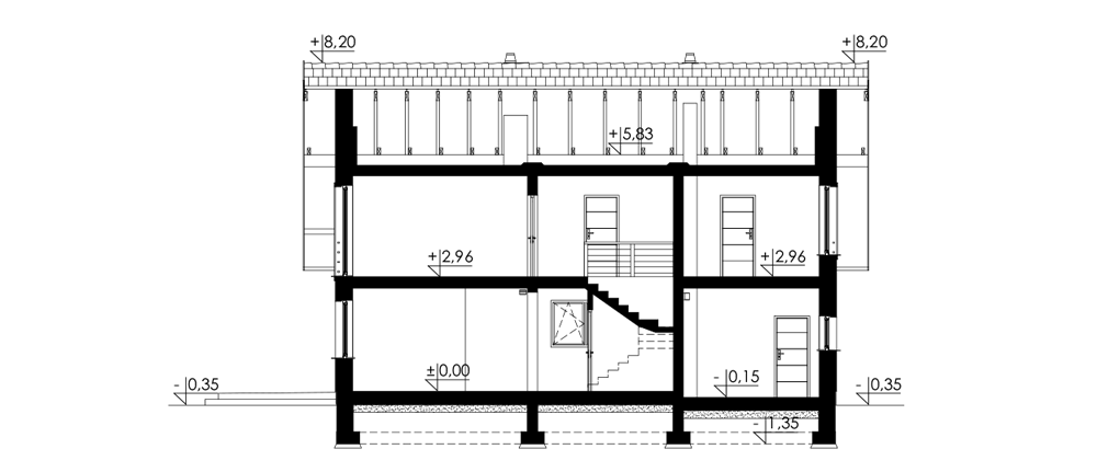
| Powierzchnia użytkowa: | 144,65 m2 |
| Powierzchnia całkowita: | 175,37 m2 |
| Powierzchnia zabudowy: | 124,50 m2 |
| Kubatura: | 812,95 m3 |
| Wysokość budynku: | 8,83 m |
| Wysokość do okapu: | b.d. |

Dbamy o najlepszą ofertę dla naszych Inwestorów.

W kilka chwil wybierzesz z nami swój wymarzony dom.

Pomożemy Ci we wszystkich formalnościach, dostosujemy projekt do Twoich indywidualnych potrzeb.

Projekt wymarzonego domu może być u Ciebie nawet następnego dnia po zamówieniu.