Porozmawiaj z nami 7 dni w tygodniu 606 705 388, 692 715 791 lub napisz: biuro@domtodom.pl
| Powierzchnia użytkowa: | 238,60 m2 |
| Powierzchnia całkowita: | 283,20 m2 |
| Powierzchnia zabudowy: | 215,80 m2 |
| Kubatura: | 781,77 m3 |
| Wysokość budynku: | 7,20 m |
| Wysokość do okapu: | b.d. |
Ściany zewnętrzne: gazobeton, ceramika, silikaty
Strop: żelbetowy
Schody: dwubiegowe
Ścianka kolankowa:-
Dach: płaski, nachylenie 0°/1,72°, pokrycie z papy bitumicznej
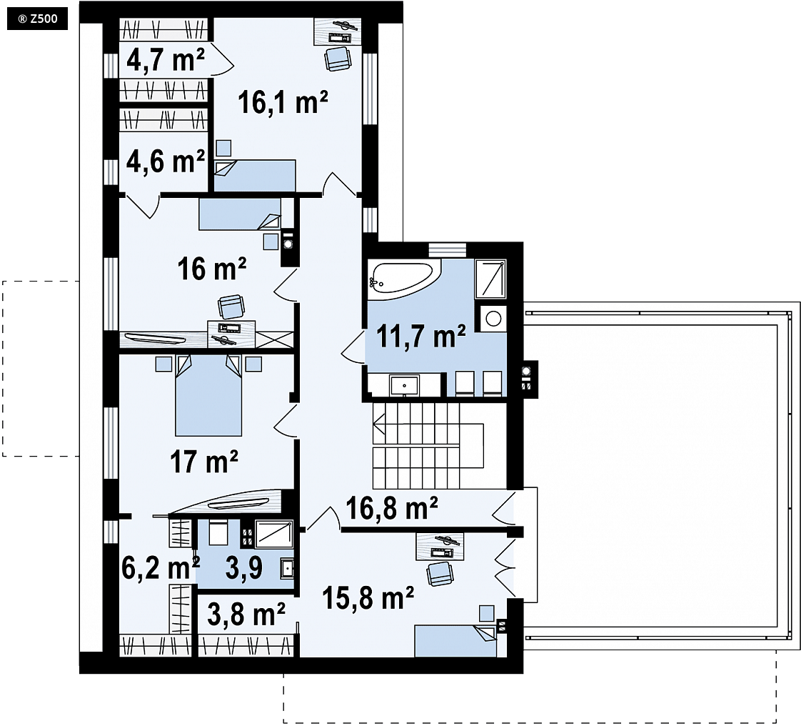
Zx130 Jest propozycją domu dla większej rodziny. Czysta forma, minimalistyczne kształty, nowoczesna bryła i współczesna architektura to główne zalety projektu Zx130. Materiały elewacyjne to beton architektoniczny, biały tynk, i ciemna płytka klinkierowa. 2 stanowiskowy garaż, pomieszczenie gospodarcze i schowek na narzędzia wydzielono w niemieszkalnej części domu. Wejście do środka prowadzi z kilku stron, a przeszklona część salonu dzienna wywołuje złudzenie, że górna bryła jest zawieszona w powietrzu. Całość budynku podzielono na część dzienną i nocną. Na parterze ulokowano przestronny salon, jadalnię i gabinet. Piętro to 4 pokoje. Każdy z nich posiada osobistą garderobę, a dodatkowo sypialnia rodziców wyposażono w łazienkę. Nad garażem znajduje się taras rekreacyjny, który sąsiaduje z dużym pokojem kąpielowym. Stanowi on urozmaicenie układu funkcjonalnego projektowanego budynku. Zx130 jest projektem zadedykowanym dla sporej rodziny lubiącej przestrzeń, wygodę i nowoczesny styl.

Dbamy o najlepszą ofertę dla naszych Inwestorów.

W kilka chwil wybierzesz z nami swój wymarzony dom.

Pomożemy Ci we wszystkich formalnościach, dostosujemy projekt do Twoich indywidualnych potrzeb.

Projekt wymarzonego domu może być u Ciebie nawet następnego dnia po zamówieniu.