Porozmawiaj z nami 7 dni w tygodniu 606 705 388, 692 715 791 lub napisz: biuro@domtodom.pl
| Powierzchnia użytkowa: | 165,70 m2 |
| Powierzchnia całkowita: | 192,10 m2 |
| Powierzchnia zabudowy: | 168,10 m2 |
| Kubatura: | 557,00 m3 |
| Wysokość budynku: | 7,39 m |
| Wysokość do okapu: | b.d. |
Ściany zewnętrzne: gazobeton, ceramika, silikaty
Strop: żelbetowy
Schody: dwubiegowe
Ścianka kolankowa:-
Dach: płaski, nachylenie 5°/1,15°, pokrycie z papy bitumicznej, blachy
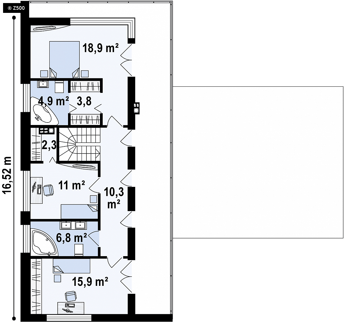
Projekt domu Zx70 wykonano w stylu nowoczesnym. Płaski dach, duże przeszklenia i możliwość zaadaptowania powierzchni nad salonem na taras to jego największe atuty. Połączenie drewnianej i kamiennej elewacji to elegancka harmonizacja ciepła i zimna. W sieni znajdują się drzwi prowadzące do schowka, który możemy przeznaczyć do chowania ubrań wierzchnich oraz butów, a także innych potrzebnych rzeczy. Parter to dzienna strefa domu. Zaprojektowano w niej przestronny salon z aneksem kuchennym i jadalnią jako częścią przeznaczoną do podejmowania gości i spędzania wolnego czasu z rodziną. Spory atut stanowi również dodatkowe pomieszczenie na pralnię. Pokój z przylegającą do niego łazienką możemy przeznaczyć dla odwiedzających nas gości, na piętrze zaś zlokalizować nocną strefę domu, do której dostęp będą mieli jedynie domownicy. Nocna strefa domu to trzy pokoje i dwie łazienki. Największa sypialnia posiada swoją własną łazienkę i garderobę, a duże przeszklenia dostarczają nam większej ilości światła. Projekt domu Zx70 jest dedykowany dla osób wymagających.

Dbamy o najlepszą ofertę dla naszych Inwestorów.

W kilka chwil wybierzesz z nami swój wymarzony dom.

Pomożemy Ci we wszystkich formalnościach, dostosujemy projekt do Twoich indywidualnych potrzeb.

Projekt wymarzonego domu może być u Ciebie nawet następnego dnia po zamówieniu.