Porozmawiaj z nami 7 dni w tygodniu 606 705 388, 692 715 791 lub napisz: biuro@domtodom.pl
| Powierzchnia użytkowa: | 156,40 m2 |
| Powierzchnia całkowita: | 194,80 m2 |
| Powierzchnia zabudowy: | 144,20 m2 |
| Kubatura: | 524,24 m3 |
| Wysokość budynku: | 7,67 m |
| Wysokość do okapu: | b.d. |
Ściany zewnętrzne: gazobeton, ceramika, silikaty
Strop: betonowy gęstożebrowy
Schody: dwubiegowe
Ścianka kolankowa: -
Dach: dwuspadowy, nachylenie 38°, pokrycie z blachodachówki, blachy
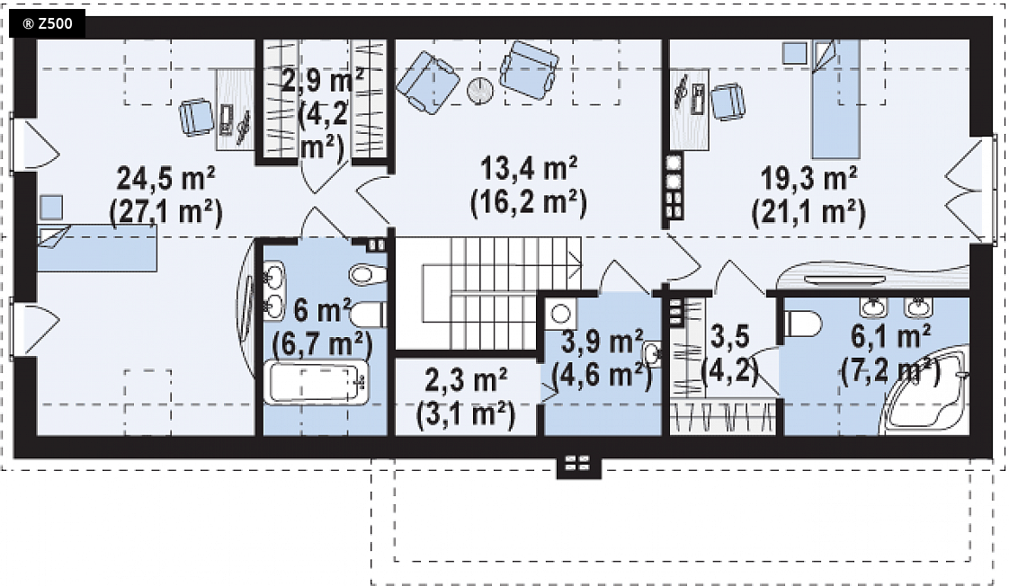
Zx58 to nowoczesny dom z poddaszem użytkowym. Prostą bryłę urozmaicają eleganckie dodatki na elewacjach. Zaletą tego projektu jest jasny, dobrze doświetlony salon połączony z jadalnią i kuchnią. Hol, który zlokalizowany został w centralnej części domu, łączy poszczególne pomieszczenia. Stąd jest możliwość bezpośredniego przejścia do dwustanowiskowego garażu. Na parterze znajdują się także: pokój z odrębną łazienką; pomieszczenie gospodarcze; spiżarnia; wc oraz sień. Poddasze natomiast to strefa prywatna domowników, są tu dwie duże sypialnie, każda z osobną łazienką i garderobą oraz pralnia z dodatkowym schowkiem. Projekt Zx58 przypadnie do gustu wszystkim tym, którzy poszukują nowoczesnego domu z funkcjonalnym wnętrzem.

Dbamy o najlepszą ofertę dla naszych Inwestorów.

W kilka chwil wybierzesz z nami swój wymarzony dom.

Pomożemy Ci we wszystkich formalnościach, dostosujemy projekt do Twoich indywidualnych potrzeb.

Projekt wymarzonego domu może być u Ciebie nawet następnego dnia po zamówieniu.