Porozmawiaj z nami 7 dni w tygodniu 606 705 388, 692 715 791 lub napisz: biuro@domtodom.pl
| Powierzchnia użytkowa: | 257,70 m2 |
| Powierzchnia całkowita: | 315,20 m2 |
| Powierzchnia zabudowy: | 261,40 m2 |
| Kubatura: | 951,00 m3 |
| Wysokość budynku: | 8,44 m |
| Wysokość do okapu: | b.d. |
Ściany zewnętrzne: gazobeton, ceramika, silikaty
Strop: żelbetowy
Schody: dwubiegowe wachlarzowe
Ścianka kolankowa: -
Dach: płaski, nachylenie 10°, pokrycie z papy bitumicznej, folii PVC, blachy
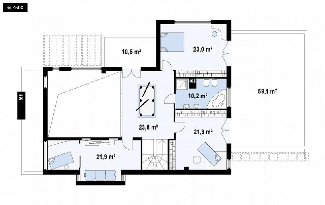
Zx1 to nowoczesny i funkcjonalny dom o eleganckiej formie architektonicznej i efektownie ukształtowanej przestrzeni wewnętrznej. Projekt nawiązuje do kompozycji domów modernistycznych, zarówno bryłą jak i programem funkcjonalnym. Połączenie bieli oraz orzechowego drewna na elewacjach wraz ze stalowymi lekkimi daszkami i pergolami tworzy spójną całość o wysokiej estetyce. Zaletą jest obszerny, dwustanowiskowy garaż. Przestrzenne powiązanie salonu z kuchnią oraz duże powierzchnie przeszkleń w ścianie ogrodowej potęgują wrażenie przestronności i naturalnie doświetlają wnętrze. Pustka nas salonem podkreśla nowatorski charakter domu. Galeria na piętrze służy nie tylko komunikacji, odpowiednio zaaranżowana może stać się centrum wypoczynku. W strefie nocnej znajdują się trzy wygodne sypialnie oraz komfortowa łazienka. Każdy z pokoi posiada wyjście na taras. Projekt Zx1 będzie domem wyróżniającym się w sąsiedztwie nie tylko detalem, ale i kubistyczną formą.

Dbamy o najlepszą ofertę dla naszych Inwestorów.

W kilka chwil wybierzesz z nami swój wymarzony dom.

Pomożemy Ci we wszystkich formalnościach, dostosujemy projekt do Twoich indywidualnych potrzeb.

Projekt wymarzonego domu może być u Ciebie nawet następnego dnia po zamówieniu.