Porozmawiaj z nami 7 dni w tygodniu 606 705 388, 692 715 791 lub napisz: biuro@domtodom.pl
| Powierzchnia użytkowa: | 136,60 m2 |
| Powierzchnia całkowita: | 179,00 m2 |
| Powierzchnia zabudowy: | 137,00 m2 |
| Kubatura: | 453,00 m3 |
| Wysokość budynku: | 7,88 m |
| Wysokość do okapu: | b.d. |
Ściany zewnętrzne: gazobeton, ceramika, silikaty
Strop: betonowy gęstożebrowy
Schody: dwubiegowe wachlarzowe
Ścianka kolankowa: 124 cm
Dach: dwuspadowy, nachylenie 40°, pokrycie z dachówki, blachodachówki
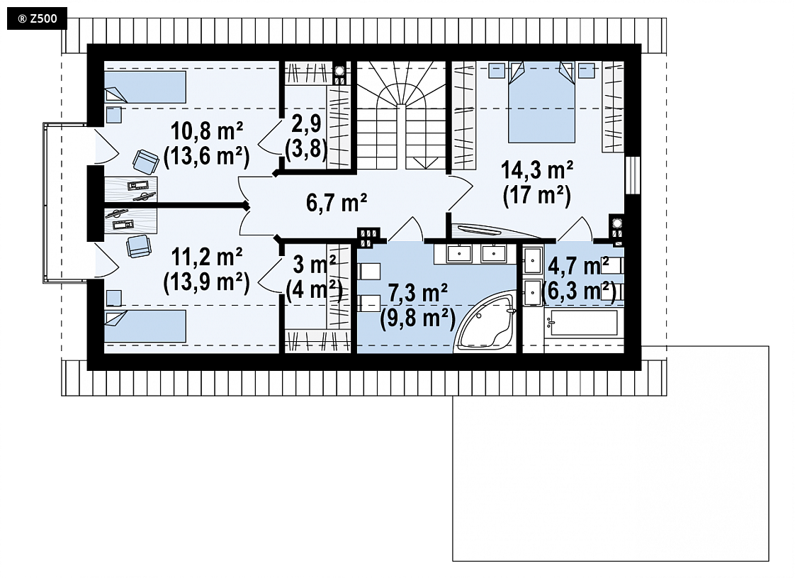
Z370 to klasyczny projekt domu jednorodzinnego z dachem dwuspadowym oraz jednostanowiskowym garażem i przylegającym pomieszczeniem gospodarczym. Pomieszczenie gospodarcze może służyć również jako schowek na narzędzia. Połączenie śnieżnobiałego tynku, szarości i ozdobnych paneli drewnianych składa się na wykończenie elewacji. Okna dachowe na poddaszu użytkowym rozmieszczono w ten sposób, aby jak najbardziej doświetlały wnętrza i nadawały im przytulności. W parterze koncentruje się dzienna strefa życia domowników. Składa się na nią pięknie urządzony salon połączony z gustowną jadalnią oraz aneksem kuchennym. Z aneksem sąsiaduje spiżarka, którą doceni każdy, kto przyrządza posiłki. Duże okna rozświetlą pomieszczenie, a przestronny taras pozwoli nam na chwile relaksu w ciszy w asyście ukochanej osoby i kieliszkiem dobrego wina w dłoni. Praktyczność architekta miała wpływ na umieszczenie łazienki częściowo pod schodami. W ten sposób efektywnie wykorzystano każdy metr powierzchni mieszkalnej. Sąsiadujący z łazienką gabinet może posłużyć jako pokój gościnny dla rodziny, która przyjedzie w odwiedziny z daleka. Piętro to nasze prywatne królestwo. Mieści się tutaj sypialnia rodziców z przylegającą do niej osobistą łazienką. Dwie umywalki to atut, na który warto sobie pozwolić ze względów wygody. Dzięki temu każdy z małżonków będzie mógł korzystać z umywalki w tym samym czasie. Pozostałe dwie sypialnie, mogące być również pokojami dla dzieci, posiadają swoje garderoby, co docenią szczególnie dorastające córki. Na oba pokoje przypada kolejna łazienka, oddzielna od łazienki rodziców, dzięki czemu unikniemy „kosmetycznych korków” i „okupacji” którejkolwiek z łazienek. Obydwie sypialnie mają wyjście na balkon. Dzięki temu można będzie wygodnie wietrzyć pościel, wieszać pranie lub swobodnie korzystać z kąpieli słonecznych. Projekt Z370 jest idealny dla rodziny z dwojgiem dzieci.

Dbamy o najlepszą ofertę dla naszych Inwestorów.

W kilka chwil wybierzesz z nami swój wymarzony dom.

Pomożemy Ci we wszystkich formalnościach, dostosujemy projekt do Twoich indywidualnych potrzeb.

Projekt wymarzonego domu może być u Ciebie nawet następnego dnia po zamówieniu.