Porozmawiaj z nami 7 dni w tygodniu 606 705 388, 692 715 791 lub napisz: biuro@domtodom.pl
| Powierzchnia użytkowa: | 119,00 m2 |
| Powierzchnia całkowita: | 147,80 m2 |
| Powierzchnia zabudowy: | 86,40 m2 |
| Kubatura: | 355,35 m3 |
| Wysokość budynku: | 7,53 m |
| Wysokość do okapu: | b.d. |
Ściany zewnętrzne: gazobeton, ceramika, silikaty
Strop: betonowy gęstożebrowy
Schody: dwubiegowe, wachlarzowe
Ścianka kolankowa: 96 cm
Dach: dwuspadowy, nachylenie 40°, pokrycie z dachówki, blachodachówki
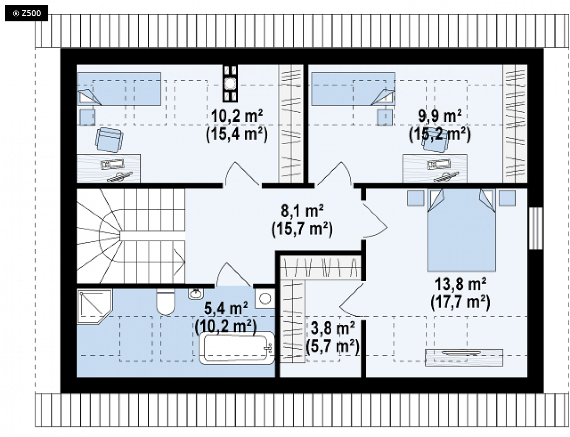
Projekt Z267 to funkcjonalny dom piętrowy o zgrabnej bryle i dwuspadowym dachu. Wykończenie elewacji ciekawymi materiałami powoduje, że dom wygląda schludnie i estetycznie.Parter to strefa dzienna domowników. Zlokalizowano tu jednoprzestrzennie połączony salon z jadalnią i z kuchnią, dużą łazienkę, sień z miejscem na szafę oraz pomieszczenie gospodarcze.Na piętrze natomiast znajdują się trzy sypialnie, w tym jedna z osobną garderobą, a także łazienka, która pomieści zarówno prysznic, jak i wannę. Z267 to idealna inwestycja dla tych, którzy poszukują niedużego domu, spełniającego wiele praktycznych funkcji.

Dbamy o najlepszą ofertę dla naszych Inwestorów.

W kilka chwil wybierzesz z nami swój wymarzony dom.

Pomożemy Ci we wszystkich formalnościach, dostosujemy projekt do Twoich indywidualnych potrzeb.

Projekt wymarzonego domu może być u Ciebie nawet następnego dnia po zamówieniu.