Porozmawiaj z nami 7 dni w tygodniu 606 705 388, 692 715 791 lub napisz: biuro@domtodom.pl
| Powierzchnia użytkowa: | 141,10 m2 |
| Powierzchnia całkowita: | 169,20 m2 |
| Powierzchnia zabudowy: | 121,30 m2 |
| Kubatura: | 430,34 m3 |
| Wysokość budynku: | 7,65 m |
| Wysokość do okapu: | b.d. |
Ściany zewnętrzne: gazobeton, ceramika, silikaty
Strop: betonowy gęstożebrowy
Schody: dwubiegowe, wachlarzowe
Ścianka kolankowa: 88 cm
Dach: dwuspadowy, nachylenie 35°, pokrycie z dachówki, blachodachówki
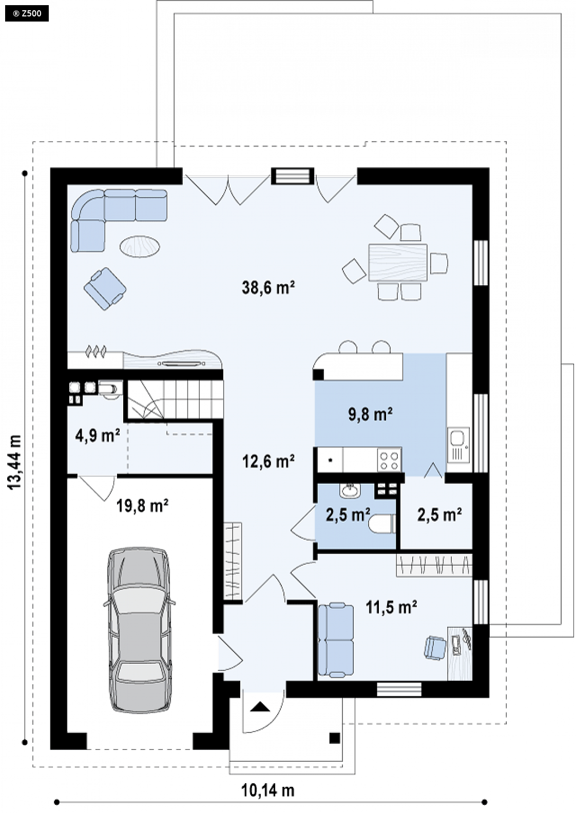
Z246 to dom z poddaszem użytkowym, przeznaczony dla 4-5 osobowej rodziny. Nieskomplikowana bryła, prosty dach z dwoma lukarnami to zalety tego budynku, podobnie jak przytulny chociaż nowoczesny wygląd elewacji. Urzeka swoim gustownym wyglądem – harmonijne połączenie surowej bieli i ciepłego drewna sprawia, że dom prezentuje się zachwycająco. Na parterze znajduje się część dzienna z obszernym salonem połączonym z jadalnią i bezpośrednim dostępem do kuchni oraz część gospodarcza z garażem jednostanowiskowym i pomieszczeniem gospodarczym. W ramach adaptacji można wydzielić zamkniętą kuchnię. Na poddaszu zlokalizowano część nocną z trzema sypialniami, ogólnodostępną łazienką oraz sypialnię rodziców z garderobą. Ciekawym rozwiązaniem jest także atrakcyjny taras, który stanowi dodatkową, nastrojową strefę wypoczynkową. Część tarasu została osłonięta drewnianym zadaszeniem mocowanym do słupów. Elementy te urozmaicają elewację ogrodową, chroniąc ją jednocześnie przed promieniami słońca.

Dbamy o najlepszą ofertę dla naszych Inwestorów.

W kilka chwil wybierzesz z nami swój wymarzony dom.

Pomożemy Ci we wszystkich formalnościach, dostosujemy projekt do Twoich indywidualnych potrzeb.

Projekt wymarzonego domu może być u Ciebie nawet następnego dnia po zamówieniu.